278 Fergus Crescent

Cedargrove/Fraserdale, Ottawa, K2J3L7

$649,900
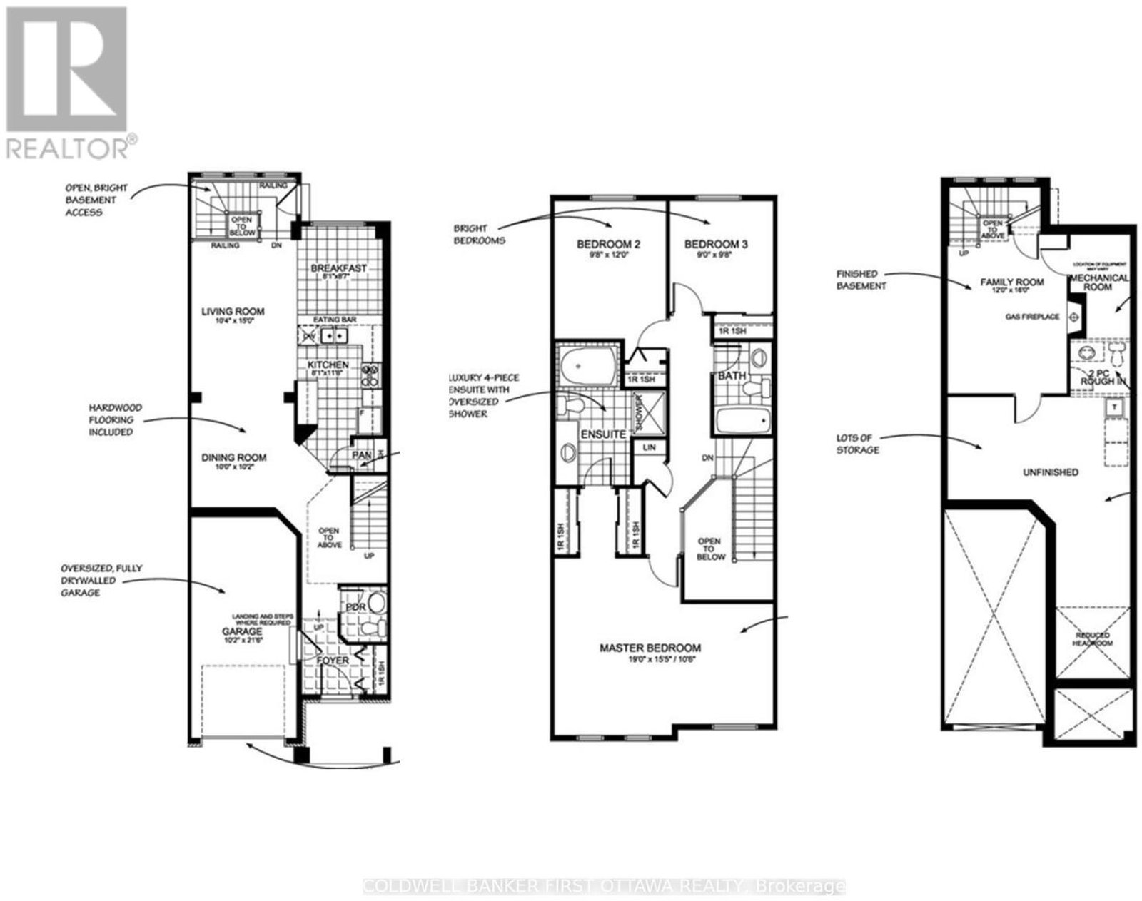
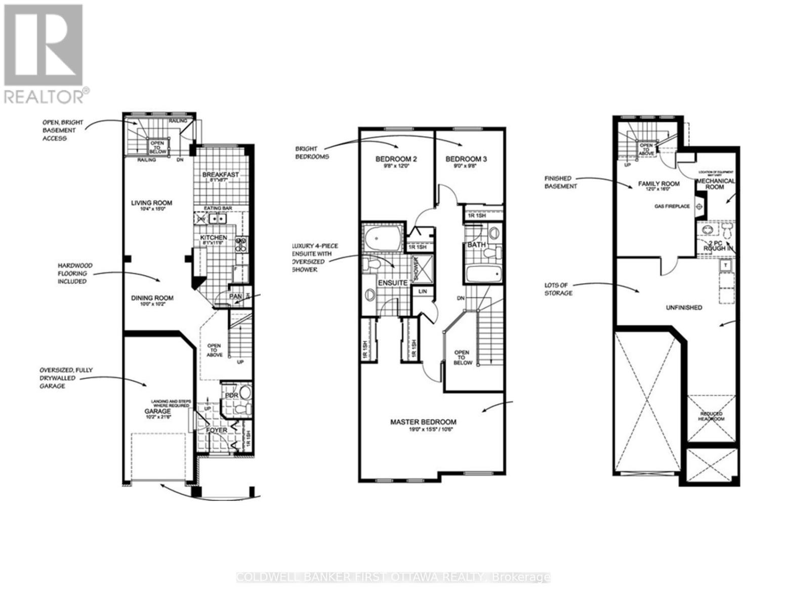
**OPEN HOUSE SUNDAY APRIL 19 2-4PM** DEFINITELY NOT YOUR AVERAGE TOWNHOME! Incomparable quality in this 3 bed, 3 bath Tartan built townhome in a central Barrhaven location. A rare floorplan offering separate living & dining rooms plus a breakfast area all on the main floor. The sunken foyer leads to bright open living areas all dressed in hardwood floors and featuring a wall of windows at the rear of the home. The kitchen provides plenty of space for the chef to work plus a convenient breakfast bar for additional seating. Upstairs, find 3 large bedrooms and 2 full bathrooms including a primary suite with hardwood floors, his & her closets and a spacious ensuite. The fully finished lower level features an open staircase, cozy gas fireplace and large family room. A fully fenced yard, with patio and NO REAR NEIGHBORS sets this home apart! Ideal location close to schools, parks and the 416. Don't settle for less!

3
BEDS

3
BATHS
 
Let's Talk About
Your Dream Home
613-369-8314
info@rachelhammer.com
  • Lot Dimensions 19.7 x 98.3 FT
  • Inclusions Garage door opener remote(s), Dishwasher, Dryer, Garage door opener, Hood Fan, Microwave, Stove, Washer, Window Coverings, Refrigerator
  • Heating/AC Forced air, Natural gas, Central air conditioning
  • Basement Finished
  • Listing Broker COLDWELL BANKER FIRST OTTAWA REALTY
  • MLSID X13010720