52 Kenmare Place

Cedargrove/Fraserdale, Ottawa, K2J3L9

$559,900
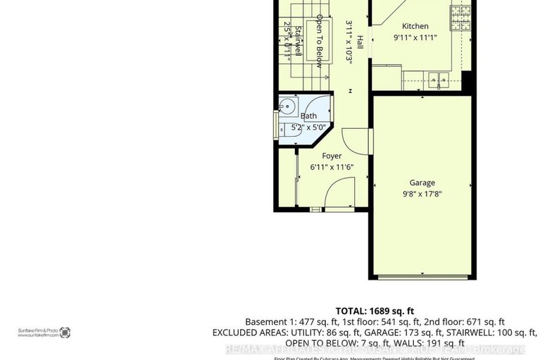
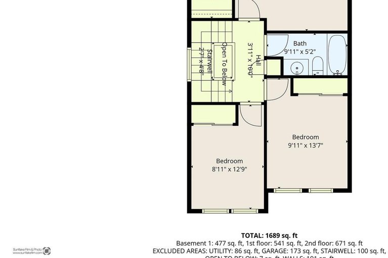
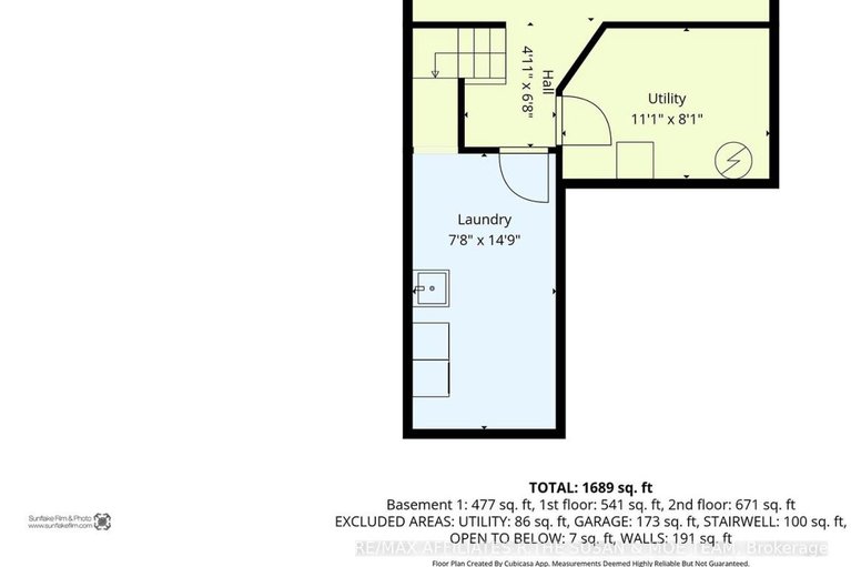
*Stunning End Unit Townhome Oasis* Nestled in a serene cul-de-sac, this beautiful end unit townhome exudes warmth and sophistication. A stunning tiled foyer and powder room set the tone for the spacious interior, where hardwood floors flow effortlessly through the expansive L-shaped living and dining rooms. The heart of the home is the large kitchen, boasting refaced cabinets, gleaming granite countertops, and a convenient pass-through to the dining area. The second floor retreat features a serene master bedroom with a 4-piece ensuite, plus two additional bedrooms and a main bathroom. The finished basement is a haven for family gatherings, with a cozy corner gas fireplace at its center. With recent upgrades including: Attic insulation upgraded 2018, rear fence 2021, deck 2022, furnace 2024, fireplace in basement 2017-ish, EV charger 2022, Kitchen appliances are all 2020-ish and a well-maintained roof (2015). This townhome is a rare find that combines charm, functionality, and peacefulness.

3
BEDS

3
BATHS
 
Let's Talk About
Your Dream Home
613-369-8314
info@rachelhammer.com
  • Lot Dimensions 43.8 x 116.7 FT
  • Inclusions Garage door opener remote(s)
  • Heating/AC Forced air, Natural gas, Central air conditioning
  • Basement Finished
  • Listing Broker RE/MAX AFFILIATES R.THE SUSAN & MOE TEAM
  • MLSID X12743604