8100 Amelia Street

Augusta Twp, Augusta, K0G1R0

$500,000
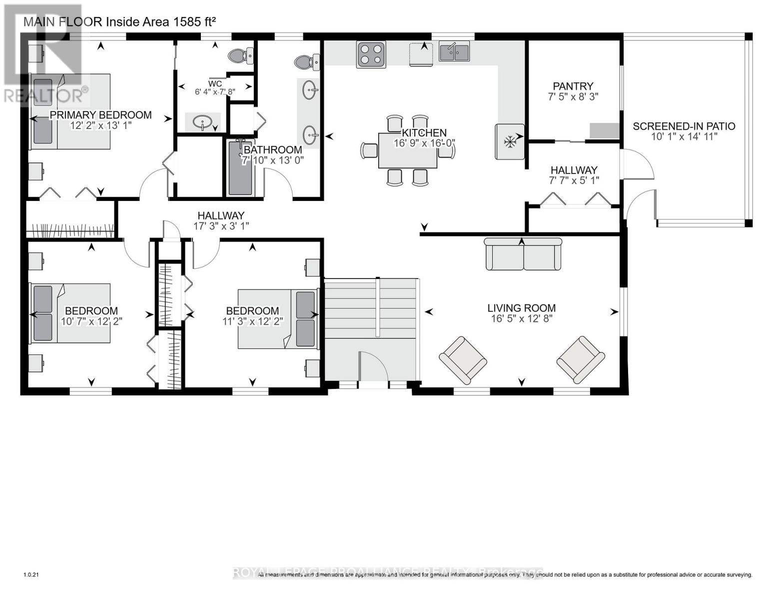
Experience the perfect blend of village charm and serene privacy in this bright, spacious 3+1 bedroom raised bungalow, situated on a quiet dead-end street. The heart of the home is a newly updated eat-in kitchen, offering ample space for a custom island or a large harvest table-perfect for family gatherings. The side porch entry opens to a functional foyer with an ample sized coat closet and a walk in pantry with the freezer included. The main floor features three bedrooms, including a primary suite with an updated 2-piece ensuite (with potential to add a shower), an updated full bathroom, and a comfortable living room. You'll also love the modern touches, including a newer central vacuum, new heat pump and furnace and a handy laundry chute accessible from both main-floor bathrooms. On the lower level there is a 4th bedroom, a dedicated storage room, the utility/laundry room(with room to add a 3rd bathroom) and a family room ready for your kids to enjoy! Set on a picturesque 1-acre lot with a private stream and no rear neighbours, this home is a tranquil retreat. With a quick closing available, you could be hosting backyard BBQ's before summer even begins!

4
BEDS

2
BATHS
 
Let's Talk About
Your Dream Home
613-369-8314
info@rachelhammer.com
  • Main - Kitchen 5.12 M x 4.89 M
  • Main - Pantry 2.52 M x 2.27 M
  • Main - Foyer 2.31 M x 1.55 M
  • Main - Living room 4.99 M x 3.85 M
  • Main - Primary Bedroom 3.99 M x 3.7 M
  • Main - Bathroom 2.34 M x 1.93 M
  • Main - Bathroom 3.97 M x 2.4 M
  • Main - Bedroom 2 3.71 M x 3.44 M
  • Main - Bedroom 3 3.71 M x 3.22 M
  • Lower - Bedroom 4 4.5 M x 3.19 M
  • Lower - Other 4.52 M x 2.6 M
  • Lower - Other 2.77 M x 1.97 M
  • Lower - Family room 9.17 M x 5.19 M
  • Lower - Utility room 9.84 M x 4.1 M
  • Lot Dimensions 125.3 x 354.2 FT
  • Inclusions Water Heater, Water Treatment, Water softener, Central Vacuum, Dryer, Freezer, Microwave, Stove, Washer, Refrigerator
  • Basement Partially finished
  • Listing Broker ROYAL LEPAGE PROALLIANCE REALTY
  • MLSID X13034120