1402 Jamison Avenue

Bilberry Creek/Queenswood Heights, Ottawa, K1E1J5

$625,000
Welcome to this well-located bungalow in the heart of Orléans, offering comfort, functionality, and a fantastic location. This 3-bedroom home features a bright, inviting kitchen with plenty of natural light and hardwood flooring throughout the main level. The primary bedroom includes its own ensuite, while a full 4-piece bathroom completes the main floor. Enjoy added warmth and charm with two gas fireplaces. The fully finished basement boasts a large family room, perfect for a variety of uses-whether a rec room, home office, or additional living space. Step outside to a beautifully landscaped, private backyard, ideal for relaxing or entertaining. Conveniently located close to parks, schools, recreation, and all amenities, this home is perfect for families, downsizers, or first-time buyers alike.

3
BEDS

3
BATHS
 
Let's Talk About
Your Dream Home
613-369-8314
info@rachelhammer.com
  • Main - Foyer 1.04 M x 1.43 M
  • Main - Living room 4.99 M x 3.36 M
  • Main - Dining room 2.28 M x 3.16 M
  • Main - Kitchen 3.74 M x 4.17 M
  • Main - Primary Bedroom 3.34 M x 3.77 M
  • Main - Bedroom 2 2.74 M x 2.9 M
  • Main - Bedroom 3 2.74 M x 2.9 M
  • Main - Bathroom 2.18 M x 1.88 M
  • Main - Bathroom 1.5 M x 1.43 M
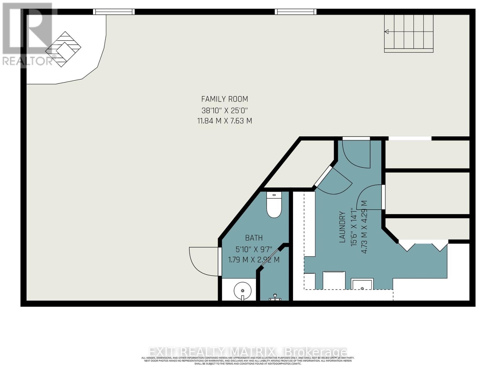
  • Lower - Family room 11.84 M x 7.63 M
  • Lower - Laundry room 4.73 M x 4.29 M
  • Lower - Bathroom 1.79 M x 2.92 M
  • Lot Dimensions 50 x 96 FT
  • Inclusions Dishwasher, Water Heater
  • Heating/AC Forced air, Natural gas, Central air conditioning
  • Basement Finished
  • Listing Broker EXIT REALTY MATRIX
  • MLSID X13028724