7089 Bush Drive

Greely, Ottawa, K4P1M8

$1,075,000
Start your day with peace of mind and predictable costs: this home averages under $300/month in utilities, with geothermal heating and triple-pane windows helping keep things efficient year-round, plus the simplicity of primarily a hydro bill. Set on a private, tree-lined lot in a peaceful, family-oriented community, this property offers a rare sense of privacy and tranquility while still being close to everyday conveniences. The home has been professionally winterized, offering added comfort and protection through every season. Inside, pride of ownership is clear throughout. The main level features spacious principal rooms with rich, dark-stained hardwood flooring and a warm, inviting living area centered around an airtight wood-burning fireplace insert framed with cultured stone. The kitchen is well appointed with stainless steel appliances and plenty of workspace, flowing naturally to a large 14' x 28' deck with a gazebo. Overlooking the heated saltwater inground pool (2016), this outdoor area is perfect for family gatherings and summer entertaining. Upstairs, the primary suite is truly one-of-a-kind and feels like a private retreat of its own, complete with a spacious sitting area, separate den/office, massive walk-in closet, and an oversized ensuite bathroom - ideal for busy parents who want space to relax, recharge, or work in peace. Major updates and improvements ensure lasting comfort and efficiency, including triple-pane windows throughout (2017-2019), 200-amp electrical service with EV charger, full septic replacement with Waterloo Biofilter (2016) and new tank (2025), new hot water tank (2025), new insulated garage doors (2025), and insulated basement flooring for added warmth and comfort. The home is also wired for ethernet, offering reliable connectivity for remote work or entertainment. A rare blend of character, function, and privacy in a setting families will love

7
BEDS

4
BATHS
 
Let's Talk About
Your Dream Home
613-369-8314
info@rachelhammer.com
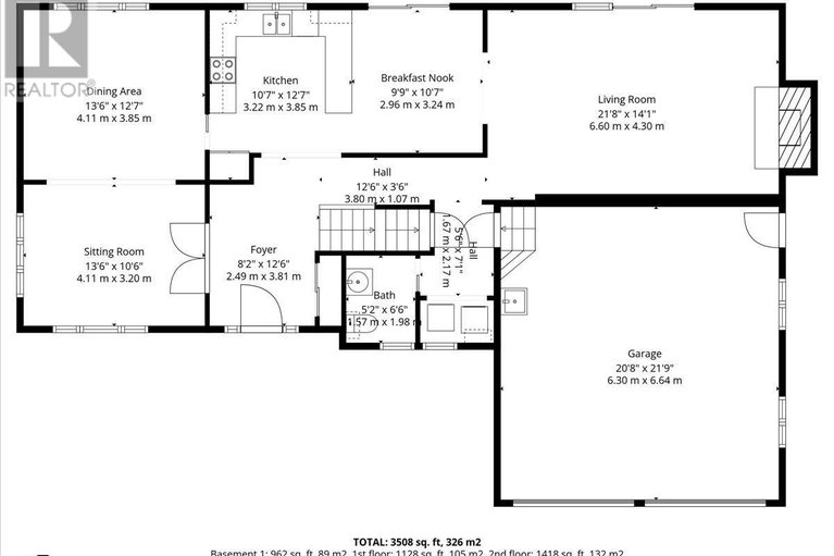
  • Main - Foyer 2.41 M x 3.23 M
  • Main - Family room 6.71 M x 4.27 M
  • Main - Kitchen 6.1 M x 3.28 M
  • Main - Dining room 3.81 M x 4.5 M
  • Main - Living room 3.45 M x 4.5 M
  • Main - Laundry room 1.65 M x 3.02 M
  • Second - Bedroom 2 3.05 M x 3.66 M
  • Second - Bedroom 3 3.05 M x 3.66 M
  • Second - Bedroom 4 4.15 M x 3.89 M
  • Second - Bathroom 3.05 M x 2.5 M
  • Second - Primary Bedroom 5.49 M x 7.62 M
  • Second - Office 2.29 M x 3.35 M
  • Second - Bathroom 4.39 M x 3.35 M
  • Lower - Bathroom 3 M x 2.5 M
  • Lower - Recreational, Games room 10.33 M x 4.02 M
  • Lower - Bedroom 5 3.81 M x 3.02 M
  • Lower - Games room 3.81 M x 4.02 M
  • Lower - Office 2.98 M x 4.02 M
  • Lower - Utility room 4 M x 4 M
  • Lot Dimensions 100.1 x 229.6 FT
  • Inclusions Dishwasher, Dryer, Hood Fan, Stove, Washer, Refrigerator
  • Heating/AC Other, Central air conditioning
  • Basement Finished
  • Listing Broker REMAX BOARDWALK REALTY
  • MLSID X13010964