234 Branthaven Street

Avalon East, Ottawa, K4A0H6

$669,900
Welcome to 234 Branthaven Street. This well-maintained two-storey brick home sits on a corner lot in the Avalon neighbourhood of Orleans, with excellent privacy backing onto an elementary school. Built in 2008, the home offers 3 bedrooms, 4 bathrooms, and a fully finished basement - excellent value for a detached single family! The main floor is open concept with a tiled kitchen featuring wood cupboards updated stainless steel appliances. The living room features upgraded hardwood flooring and a gas fireplace. The space is filled with natural light! Three good-sized bedrooms on the second floor include the primary with ensuite bathroom and a second full bathroom. This entire level as well as the staircases have been recarpeted fresh for the sale of the home. The finished basement provides a spacious rec room with laminate flooring, a fourth bathroom, and storage room all lit by two large windows. The backyard features a heated salt water inground pool, interlock patio, and wooden gazebo. The whole home has just been freshly repainted ('26). Additional updates include air conditioning ('25), pool pump ('25), roof ('24), washer and dryer ('24), and stove ('23). Skip the townhome and jump straight into this detached property in a family-friendly neighbourhood.

3
BEDS

4
BATHS
 
Let's Talk About
Your Dream Home
613-369-8314
info@rachelhammer.com
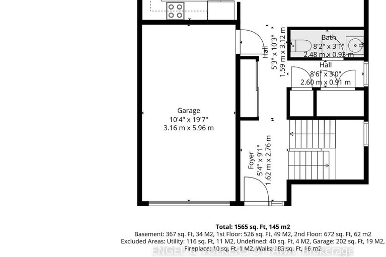
  • Main - Foyer 5.64 M x 8.99 M
  • Main - Living room 14.14 M x 11.98 M
  • Main - Kitchen 10.56 M x 11.58 M
  • Main - Bathroom 7.81 M x 3.15 M
  • Main - Other 2.99 M x 5.81 M
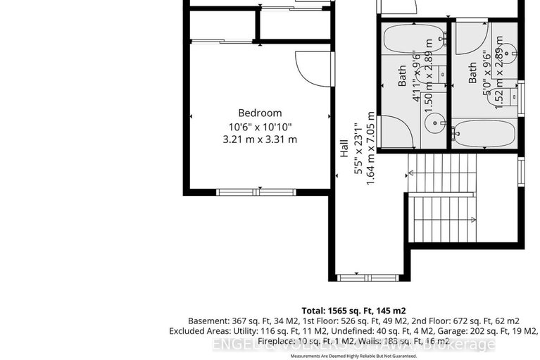
  • Second - Bedroom 10.56 M x 11.81 M
  • Second - Bedroom 10.56 M x 11.48 M
  • Second - Bedroom 12.4 M x 11.81 M
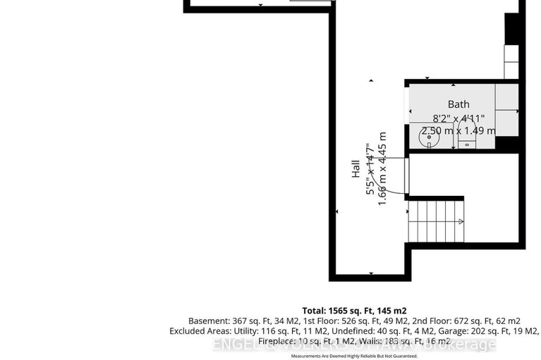
  • Second - Bathroom 9.97 M x 5.25 M
  • Second - Bathroom 9.42 M x 5.25 M
  • Lower - Recreational, Games room 13.75 M x 16.4 M
  • Lower - Bathroom 6.5 M x 4.89 M
  • Lower - Utility room 10.14 M x 10.4 M
  • Lot Dimensions 41 x 86.8 FT
  • Inclusions Central Vacuum, Garage door opener remote(s), Water meter, Dishwasher, Dryer, Freezer, Stove, Washer, Refrigerator
  • Heating/AC Forced air, Natural gas, Central air conditioning
  • Basement Finished
  • Listing Broker ENGEL & VOLKERS OTTAWA
  • MLSID X12994444