120 Mill Street

Vankleek Hill, Champlain, K0B1R0

$585,000
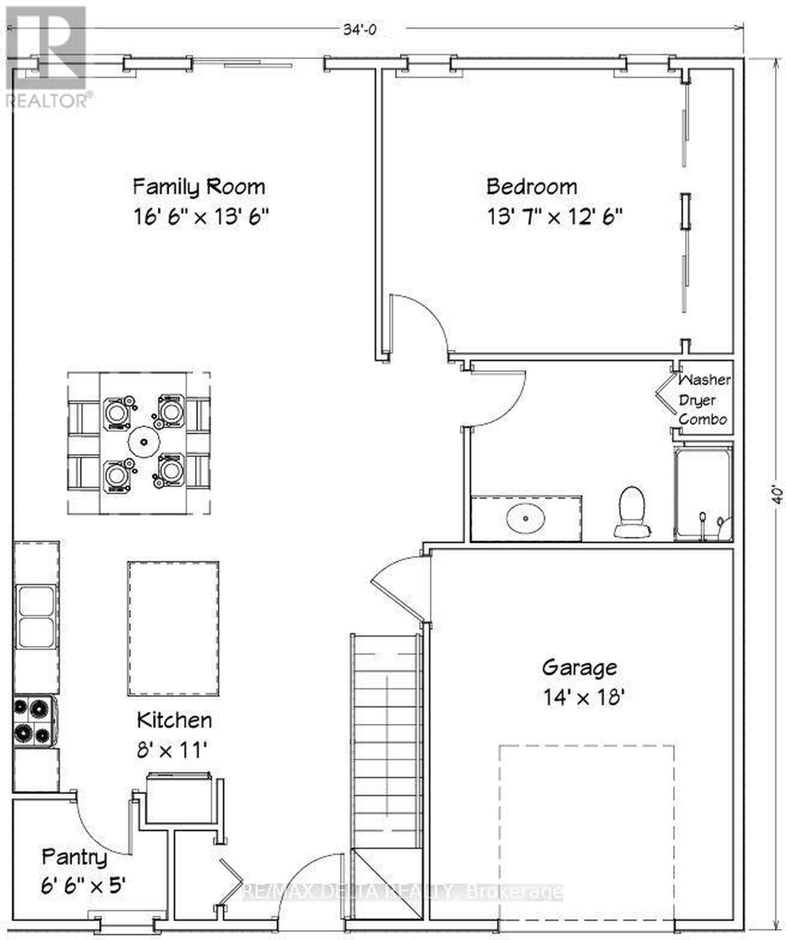
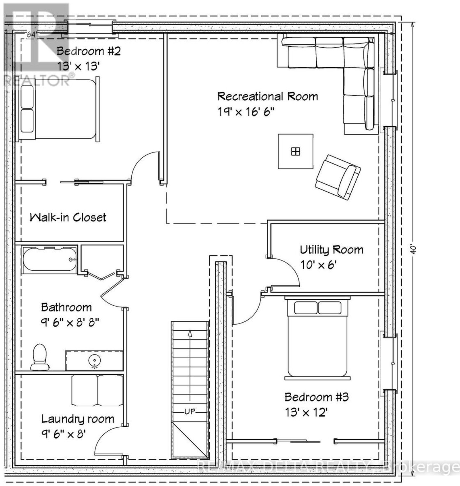
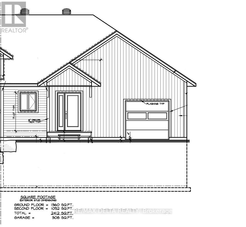
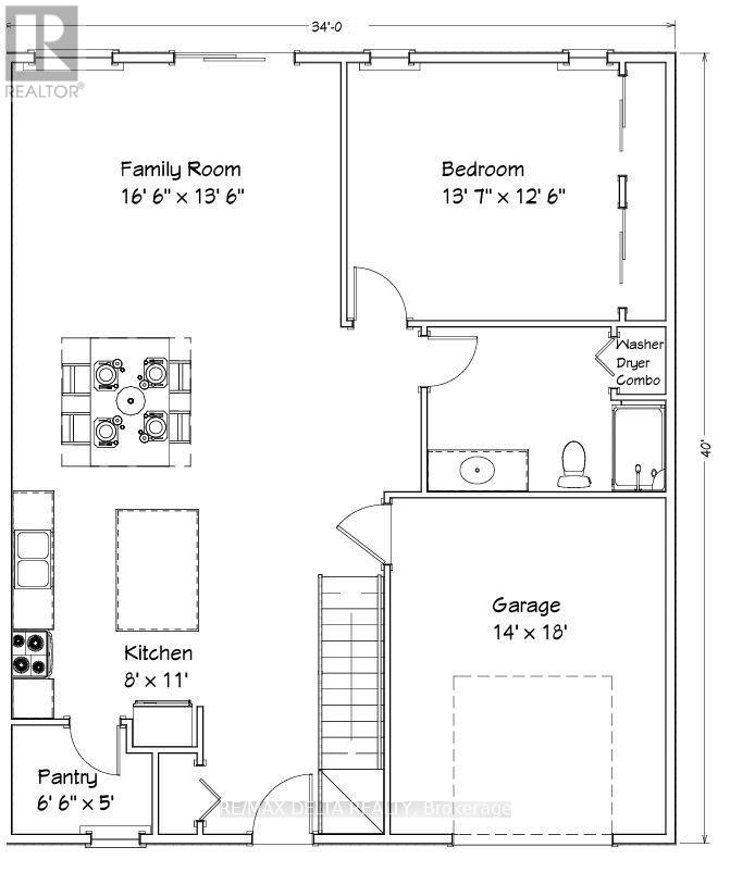
Your forever home is coming to life! This beautiful 1-bedroom semi-detached bungalow is being built in a well-established neighbourhood in picturesque Vankleek Hill. Quality construction and custom design make this one a great investment in your future. This forever home is designed with adaptable spaces that grow with you through every stage of life, providing enduring style, long-term comfort, convenience, and lasting value. Enjoy the spacious feel of 9' ceilings. Benefit from advanced, energy-efficient construction that keeps indoor temperatures comfortable year-round while dramatically reducing utility costs. High-performance foundation materials, modern insulation and low-solar windows will create a quieter, healthier living environment with long-term savings built right in. Open-concept main floor living includes: kitchen with granite counter-tops, LR, DR, main floor bedroom, a full bath and laundry. Unfinished basement: Designed to accommodate 2 additional bedrooms, large recreation room, full bath and second laundry. Quality materials, smart layout choices. The basement can be finished at an additional cost. Fully landscaped with 2-car paved driveway, natural gas central heating, central A/C, Automatic Garage Door Opener, Composite and Vinyl Siding. Tarion New Home Warranty. Note: HST is applicable to Sale Price.

1
BED

2
BATHS
 
Let's Talk About
Your Dream Home
613-369-8314
info@rachelhammer.com
  • Main - Kitchen 2.4 M x 3.35 M
  • Main - Great room 5.03 M x 4.11 M
  • Main - Primary Bedroom 4.14 M x 3.81 M
  • Lot Dimensions 40 x 83 FT
  • Inclusions Garage door opener remote(s), Water meter
  • Heating/AC Forced air, Natural gas, Central air conditioning
  • Basement Unfinished
  • Listing Broker RE/MAX DELTA REALTY
  • MLSID X12923110