1112 Cobden Road

Parkway Park, Ottawa, K2C2Z2

$629,900
Discover this versatile and possibly income-generating home on Cobden Road in Ottawa's desirable Parkway Park neighbourhood, perfectly positioned for convenient city living. The main level upper floor offer three spacious bedrooms upstairs, complemented by a full bathroom, creating an ideal family layout with plenty of natural light and comfortable living spaces. Downstairs, a fully separate in-law suite provides two additional bedrooms and its own private kitchen, perfect for extended family, guests, or generating rental income to help subsidize your mortgage payments. Outside, an extra-long single car detached garage offers ample storage and parking for multiple vehicles or hobbies. Residents enjoy easy access to top local amenities, including the nearby Pinecrest Recreation Centre with its pools, arenas, and fitness facilities, excellent schools, community parks and playgrounds, shopping along Baseline Road, and quick highway 417 access for effortless commutes to downtown Ottawa and beyond. This centrally located property is a rare opportunity to own a turnkey home with built in financial flexibility in one of Ottawa's most convenient West End communities. 3 bedrooms and 1 kitchen above grade, 2 bedrooms and 1 kitchen below grade. 48 hours notice for all showings. 24 hours irrevocable on all offers. Some photos are digitally enhanced.

5
BEDS

2
BATHS
 
Let's Talk About
Your Dream Home
613-369-8314
info@rachelhammer.com
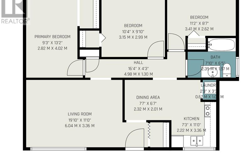
  • Main - Living room 6.04 M x 3.36 M
  • Main - Dining room 2.32 M x 2.01 M
  • Main - Kitchen 2.22 M x 3.36 M
  • Main - Laundry room 0.67 M x 1 M
  • Main - Primary Bedroom 2.82 M x 4.02 M
  • Main - Bedroom 2 3.15 M x 2.99 M
  • Main - Bedroom 3 3.41 M x 2.62 M
  • Main - Bathroom 2.39 M x 1.97 M
  • Lower - Eating area 3.9 M x 3.79 M
  • Lower - Kitchen 3.9 M x 3 M
  • Lower - Bedroom 5 2.18 M x 4 M
  • Lower - Bathroom 3.28 M x 1.59 M
  • Lower - Primary Bedroom 3.28 M x 4.33 M
  • Lower - Other 3.89 M x 1.55 M
  • Lot Dimensions 51.1 x 98 FT|under 1/2 acre
  • Inclusions Dryer, Two stoves, Two Washers, Two Refrigerators
  • Heating/AC Forced air, Natural gas, Central air conditioning
  • Basement Finished
  • Listing Broker BENNETT PROPERTY SHOP REALTY
  • MLSID X12845720