273 Dion Avenue

Town of Rockland, Clarence-rockland, K4K0M4

$545,000
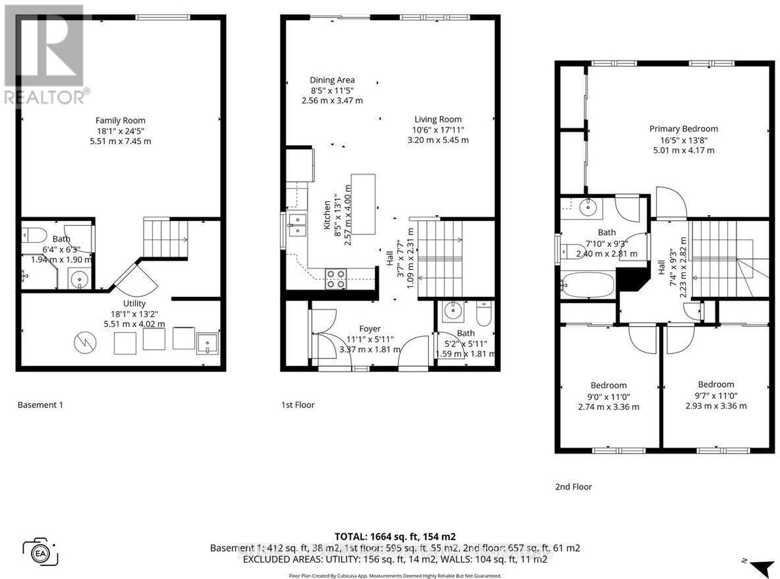
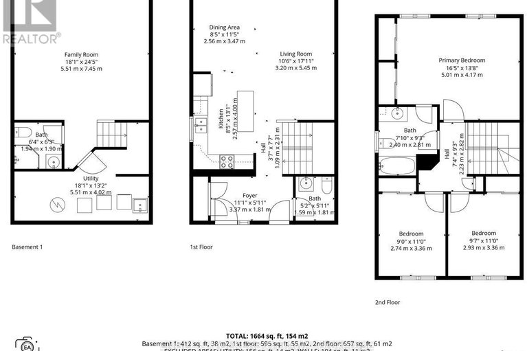
Welcome to 273 Dion Avenue in the growing and family-friendly Town of Rockland. This beautiful end-unit townhome showcases quality upgrades throughout and is located on a quiet street, featuring a fully fenced backyard backing directly onto the Rockland Golf Course - with no rear neighbours and open, scenic views. This is a rare opportunity to enjoy privacy and a peaceful golf course setting right from your own backyard.The main level offers a bright, open-concept layout with a spacious foyer, a convenient powder room, and elegant hardwood flooring throughout the living and dining areas. The kitchen stands out with ceiling-height cabinetry, under-cabinet lighting, quartz countertops, and stainless steel appliances.Upstairs, you'll find a generously sized primary bedroom with direct access to the main bathroom, along with two additional well-proportioned bedrooms. The fully finished basement includes a large recreation room and a full bathroom, providing extra living space that's perfect for the whole family.

3
BEDS

3
BATHS
 
Let's Talk About
Your Dream Home
613-369-8314
info@rachelhammer.com
  • Lot Dimensions 25.4 x 102.6 FT
  • Inclusions Garage door opener remote(s), Dishwasher, Dryer, Hood Fan, Stove, Washer, Refrigerator
  • Heating/AC Forced air, Natural gas, Central air conditioning
  • Basement Finished
  • Listing Broker ENGEL & VOLKERS OTTAWA
  • MLSID X12825292