2805 Rocky Road

Augusta Twp, Augusta, K6V5T1

$389,900
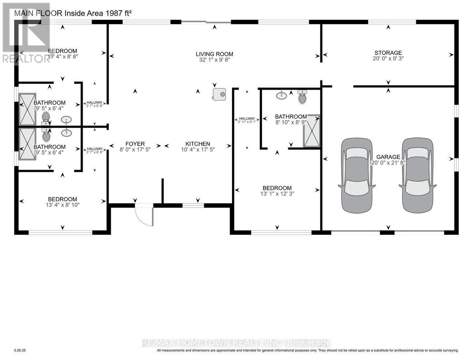
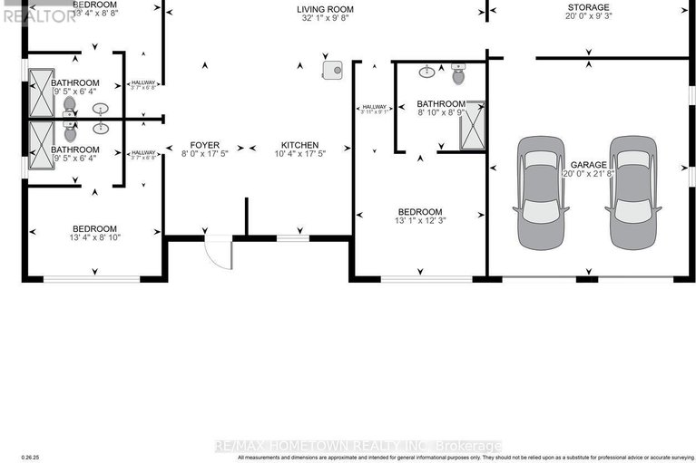
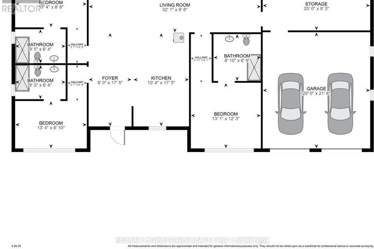
Take a look at this unfinished 1500+ sq ft bungalow, all on one level. This home gives you the opportunity to decide how you want to finish it. It offers three bedrooms, three plumbed-in bathrooms, an attached double garage, and a private setting set back from the road. It's only a short drive to the 401, Brockville, or Prescott. This bungalow sits on a slab with in-floor hot water heating planned throughout. There's still work to be done to complete it: the septic system has been dug and is ready to install, a well is needed, and the hydro needs to be connected. Inside, the space is yours to finish however you like. The front veranda is designed to be heated, which is a nice bonus for Canadian winters. The layout is open concept as you walk through the front door. You're greeted by the living room, kitchen, and dining area, which could also work as an office or sitting room. Just off this space is the laundry and mechanical room/mudroom with access to the garage. The primary bedroom, with its own five-piece bath, is on this side of the house. Two more bedrooms, each with their own three-piece ensuite, make hosting guests easy. One of the best features is that the interior walls can be moved if you want to adjust room sizes or reconfigure the layout. All room entrances have been designed and fitted to support stylish barn doors, adding both character and space-saving functionality. The possibilities are wide open. This can be finished with a construction loan or a loan with quotes for major renovations; check with your lender. The taxes are based on the vacant land, and the buyer will have to do their own due diligence for quotes to finish the inside of the house, septic, well, and hooking up the hydro. Property being sold 'as is.' The following permits have been closed. Footings: Foundation column rebar, the foundation prior to backfill, rough plumbing in 2023, framing, partial insulation, Partial insulation and VB in 2025

3
BEDS

3
BATHS
 
Let's Talk About
Your Dream Home
613-369-8314
info@rachelhammer.com
  • Main - Foyer 2.44 M x 5.32 M
  • Main - Kitchen 3.61 M x 5.31 M
  • Main - Living room 2.95 M x 9.79 M
  • Main - Primary Bedroom 3.73 M x 3.98 M
  • Main - Bathroom 2.66 M x 2.69 M
  • Main - Bedroom 2 2.7 M x 4.07 M
  • Main - Bathroom 1.94 M x 2.87 M
  • Main - Bedroom 3 2.65 M x 4.07 M
  • Main - Bathroom 1.93 M x 2.87 M
  • Main - Laundry room 2.82 M x 6.1 M
  • Lot Dimensions 217 FT|2 - 4.99 acres
  • Heating/AC None
  • Listing Broker RE/MAX HOMETOWN REALTY INC
  • MLSID X12809634