896 Sendero Way

Remainder of Stittsville & Area, Ottawa, K2S2W8

$1,058,000
Welcome to 896 Sendero Way, a 2024-built Tartan Homes Ashton model offering 4+1 bedrooms, 3.5 bathrooms, a fully finished basement, and a double car garage in Stittsville's desirable Edenwylde community. Thoughtfully designed for modern living, this home features four spacious bedrooms on the upper level, a dedicated main-floor office, and an additional breakfast nook seamlessly integrated into the kitchen - creating defined yet connected living spaces ideal for families and professionals alike. The main level showcases 9-foot ceilings, hardwood flooring, and large windows that bring natural light throughout. The kitchen is finished with quartz countertops, built-in appliances, generous cabinetry, and a functional layout that flows effortlessly into the dining and living areas - perfect for everyday living and entertaining. Upstairs, the primary retreat includes a walk-in closet and a five-piece ensuite complete with double vanity, glass shower, and soaker tub. Three additional bedrooms and second-floor laundry provide practical separation and convenience. The fully finished lower level extends the living space with a spacious recreation area, an additional bedroom, and a full bathroom - offering flexibility for guests, extended family, or multigenerational living. Situated on a corner lot with R3 zoning (buyer to verify permitted uses), the property offers added potential within the neighbourhood context. A double-wide driveway, strong curb appeal, and proximity to parks, schools, shopping, transit, and commuter routes complete the offering. A rare opportunity to secure a nearly new, move-in ready home in one of Stittsville's established and growing communities.

5
BEDS

4
BATHS
 
Let's Talk About
Your Dream Home
613-369-8314
info@rachelhammer.com
  • Main - Foyer 2.29 M x 3.56 M
  • Main - Mud room 3.68 M x 2.01 M
  • Main - Office 3.68 M x 2.84 M
  • Main - Dining room 4.39 M x 3.71 M
  • Main - Kitchen 3.63 M x 3.99 M
  • Main - Living room 4.52 M x 4.85 M
  • Main - Eating area 3.63 M x 2.51 M
  • Second - Bedroom 3 3.99 M x 3.96 M
  • Second - Bedroom 4 2.97 M x 3.45 M
  • Second - Bathroom 3 M x 3.56 M
  • Second - Bathroom 3 M x 2.18 M
  • Second - Laundry room 2.31 M x 2.11 M
  • Second - Primary Bedroom 5.05 M x 6.05 M
  • Second - Bedroom 2 4.06 M x 3.96 M
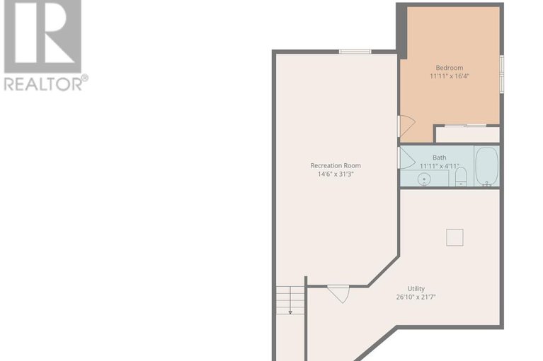
  • Lower - Bedroom 5 3.63 M x 4.98 M
  • Lower - Recreational, Games room 4.42 M x 9.53 M
  • Lower - Utility room 8.18 M x 6.58 M
  • Lot Dimensions 37.3 x 100 FT
  • Inclusions Garage door opener remote(s), Oven - Built-In, Central Vacuum, Water meter, Dishwasher, Microwave, Oven, Stove, Window Coverings, Refrigerator
  • Heating/AC Forced air, Natural gas, Central air conditioning
  • Basement Finished
  • Listing Broker COLDWELL BANKER FIRST OTTAWA REALTY
  • MLSID X12790968