24 Bernard Crescent

Augusta Twp, Augusta, K0E1P0

$749,900
Are you are looking for the perfect family home? Then look no further than 24 Bernard Crescent. Built by the current owners in 1986 and meticulously maintained, this well thought out, spacious home has much to offer. The double lot boasts year round river views. The handsome and low maintenance brick exterior pairs nicely with the architectural shingle roof re-done in 2020. The attached, oversized double garage is insulated and heated. Mechanically, there is a high efficiency, natural gas furnace installed in 2020, central air, a stand-by generator and a new septic tank from 2021. Off the kitchen and garage there is a mudroom that leads to the rear deck which is perfect for barbecuing on those lazy summer evenings. Entertain in the spacious living room with a cozy wood fire burning, gazing at the river, or relax with the family in the lower level family room, with a gas burning fireplace, appreciating the abundance of natural light from the oversized windows. Great location being mere minutes from Brockville in the popular Maitland area, where you have easy access to Highway 401. Don't miss out on this beautiful home that ticks off all of the boxes. ** This is a linked property.**

4
BEDS

2
BATHS
 
Let's Talk About
Your Dream Home
613-369-8314
info@rachelhammer.com
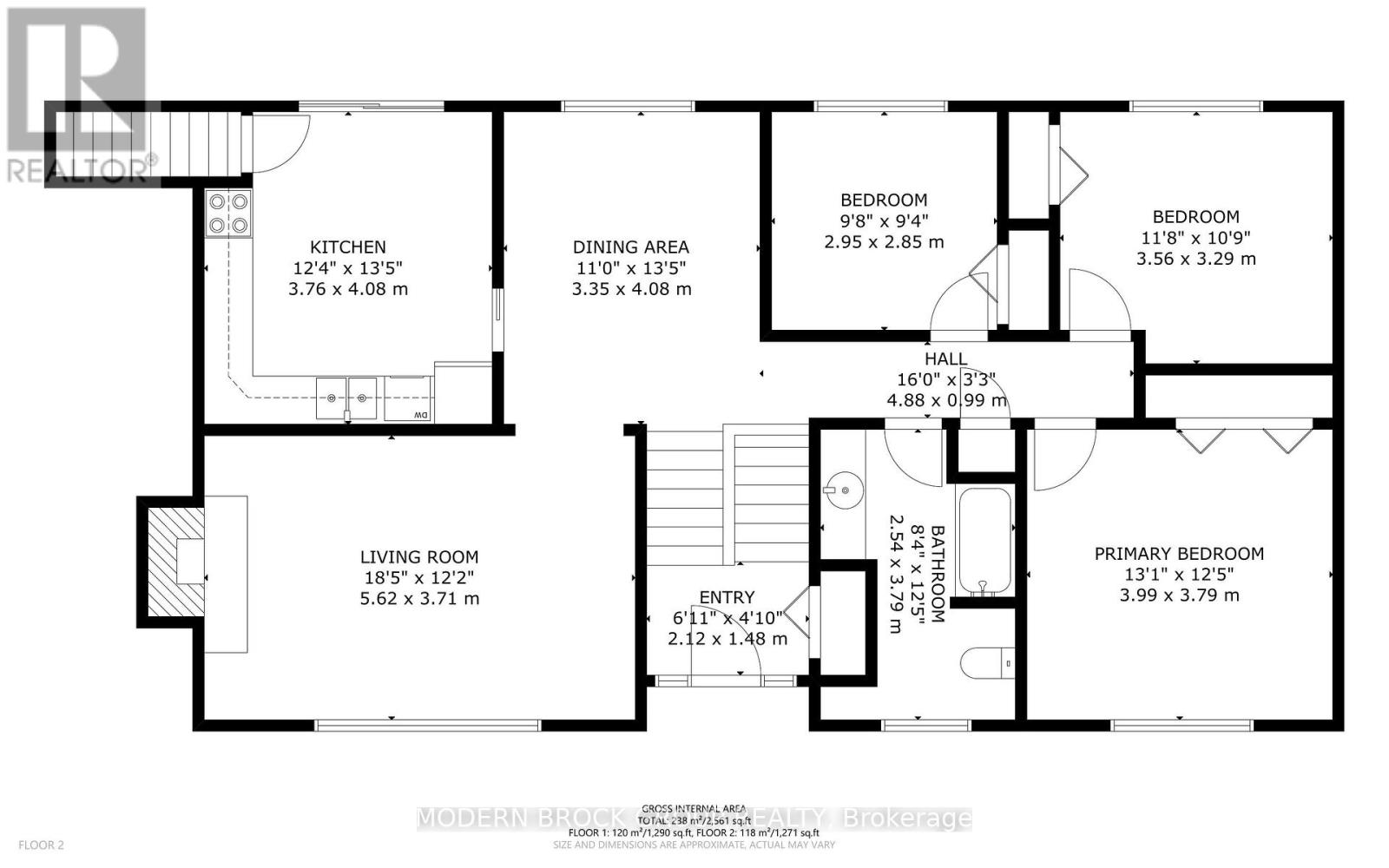
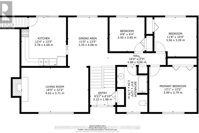
  • Main - Living room 5.62 M x 3.71 M
  • Main - Dining room 4.08 M x 3.35 M
  • Main - Kitchen 4.08 M x 3.76 M
  • Main - Primary Bedroom 3.99 M x 3.79 M
  • Main - Bedroom 2 3.56 M x 3.29 M
  • Main - Bedroom 3 2.95 M x 2.85 M
  • Main - Bathroom 3.79 M x 2.54 M
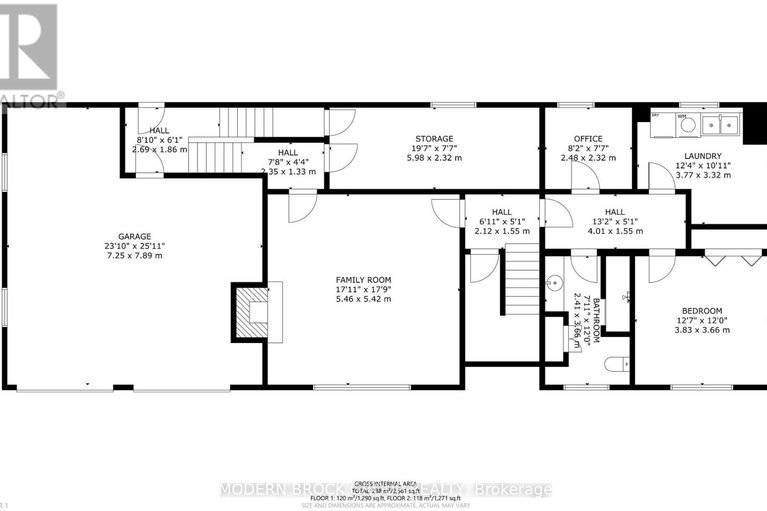
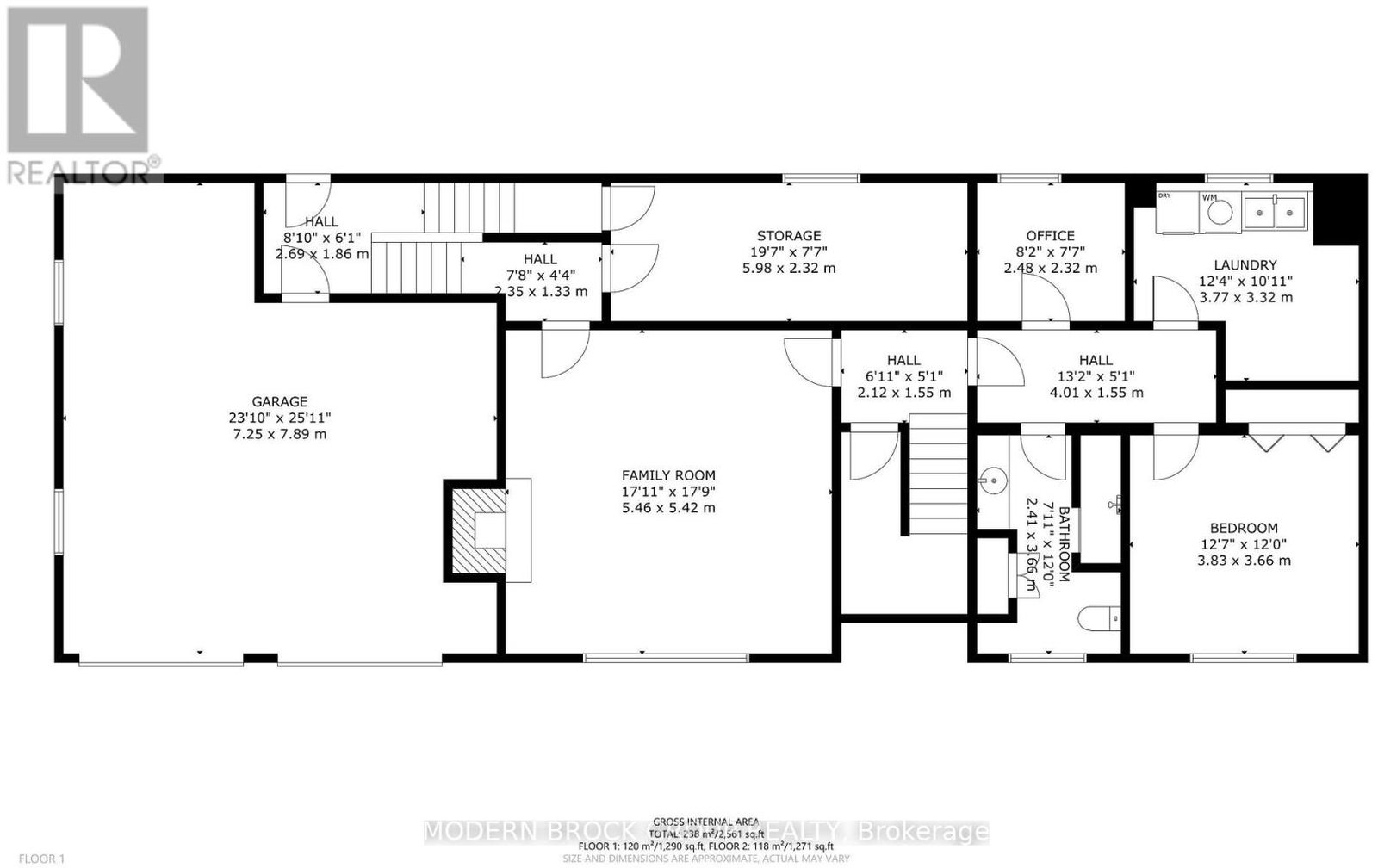
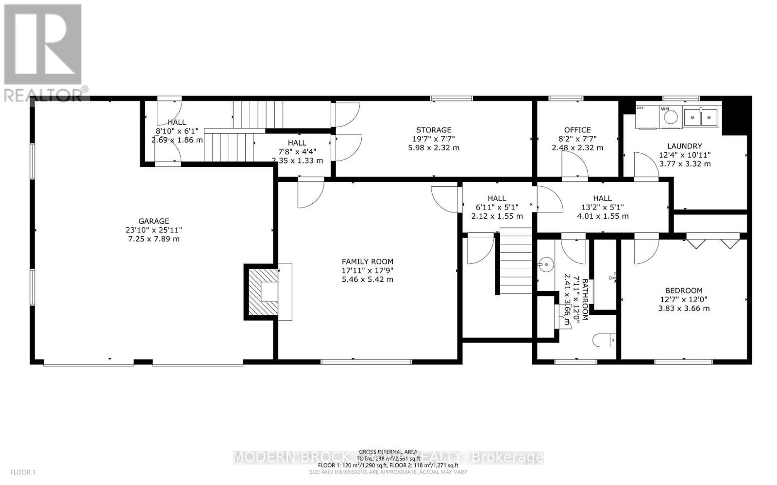
  • Lower - Office 2.48 M x 2.32 M
  • Lower - Laundry room 3.77 M x 3.32 M
  • Lower - Family room 5.46 M x 5.42 M
  • Lower - Bedroom 4 3.83 M x 3.66 M
  • Lower - Bathroom 3.66 M x 2.41 M
  • Lot Dimensions 220.8 x 135.2 FT
  • Inclusions Garage door opener remote(s), Water Heater, Central Vacuum, Dishwasher, Dryer, Freezer, Hood Fan, Stove, Washer, Water softener, Window Coverings, Refrigerator
  • Heating/AC Forced air, Natural gas, Central air conditioning
  • Basement Finished
  • Listing Broker MODERN BROCK GROUP REALTY
  • MLSID X12728800