6324 Cty Rd 15 Road

Augusta Twp, Augusta, K6V5T2

$625,000
You will not regret changing your address! Ideally located close to Highways 401 & 416, minutes to Brockville & Prescott. This home must be viewed inside to truly appreciate it's generous size and thoughtful layout. Proudly owned by one family. This home offers a family sized dining room with french doors, kitchen featuring a breakfast nook, center island, built in glass cabinets, built in appliances - perfect for everyday living and entertaining. Main floor laundry is conveniently located off kitchen with a door to side yard. The inviting living room boasts gleaming hardwood floors, The main level also includes an oversized primary bedroom with a 3 piece ensuite, a spacious 2nd bedroom and a centrally located modern bath with soaker tub. The lower level is mainly finished and has a games room, a recreation room with an electric fireplace & built in cabinets, a 3 piece bath, 3rd bedroom, kitchenette & utility room - ideal for guests or extended family. Attached double garage, plus a fenced tennis court - could be for other sports - pickleball. A versatile well maintained property offering space, comfort and convenience - this is a home you'll be proud to call your own. septic tank installed by Elmers in 2020. Roof is 3.5 years old.

3
BEDS

3
BATHS
 
Let's Talk About
Your Dream Home
613-369-8314
info@rachelhammer.com
  • Main - Kitchen 6.65 M x 3.99 M
  • Main - Dining room 5.56 M x 3.18 M
  • Main - Living room 3.81 M x 5.61 M
  • Main - Other 4.04 M x 2.13 M
  • Main - Primary Bedroom 5.94 M x 3.52 M
  • Main - Bedroom 6.38 M x 3 M
  • Main - Laundry room 3.51 M x 1.87 M
  • Main - Bathroom 2.33 M x 2.65 M
  • Main - Bathroom 3.17 M x 3.81 M
  • Main - Pantry 1.98 M x 2.95 M
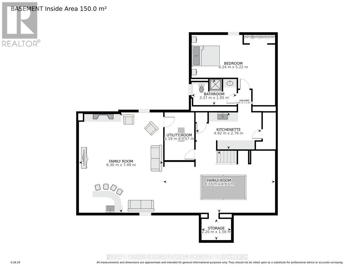
  • Lower - Recreational, Games room 6.3 M x 7.49 M
  • Lower - Games room 8.37 M x 4.63 M
  • Lower - Bedroom 3 6.24 M x 5.22 M
  • Lower - Utility room 2.19 M x 3.57 M
  • Lower - Other 2.2 M x 1.58 M
  • Lower - Other 4.92 M x 2.76 M
  • Lower - Bathroom 3.37 M x 1.95 M
  • Lot Dimensions 270 x 190 FT
  • Inclusions Oven - Built-In, Central Vacuum, Water Heater, Water softener, Dishwasher, Garage door opener, Oven, Stove, Refrigerator
  • Heating/AC Forced air, Electric, Central air conditioning
  • Basement Finished
  • Listing Broker ROYAL LEPAGE PROALLIANCE REALTY
  • MLSID X12708610