1751 Baseline Road

Bel Air Heights, Ottawa, K2C0C1

$425,000
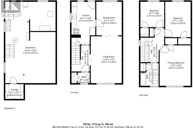
Welcome to 1751 Baseline Road, a semi-detached 2 storey home featuring 3 bedrooms and is located in Ottawa's desirable Belair Heights community in Central West Ottawa - an ideal choice for investors, families, professionals, or anyone seeking a balanced lifestyle in a hard to beat central location. The open-concept main floor is designed for everyday living and entertaining, with a spacious living room where oversized windows bring in plenty of natural light. From here, step out to your private yard, perfect for summer barbecues, morning coffee. A separate dining room provides a dedicated space for hosting gatherings with family and friends while the spacious eat-in kitchen offers abundant cabinetry and ample counter space. Upstairs, the primary suite is bright and airy with large windows. Two additional bedrooms are generously sized and share easy access to a four-piece main bath. The unfinished lower level presents an opportunity to customize the space to suit your lifestyle with additional living area, laundry room and ample storage. Belair Heights itself is one of Ottawa's hidden gems, known for its mature trees and strong sense of community. The neighborhood offers a peaceful suburban feel while remaining close to everything you need: scenic pathways, family-friendly parks, and recreational facilities encourage outdoor enjoyment, while nearby schools, shopping centers, and dining options add everyday convenience. You'll enjoy quick access to Carlingwood Mall, Algonquin College, and the Queensway Carleton Hospital, with public transit routes - making commuting across the city simple. Major roadways are just minutes away, connecting you easily to downtown Ottawa and beyond!

3
BEDS

1
BATH
 
Let's Talk About
Your Dream Home
613-369-8314
info@rachelhammer.com
  • Main - Foyer 1.39 M x 1.23 M
  • Main - Living room 5.38 M x 3.55 M
  • Main - Dining room 3.85 M x 2.92 M
  • Main - Kitchen 4.89 M x 2.73 M
  • Second - Primary Bedroom 4.65 M x 3.55 M
  • Second - Bedroom 2 4.07 M x 2.92 M
  • Second - Bedroom 3 2.9 M x 2.72 M
  • Second - Bathroom 2.61 M x 2.1 M
  • Lower - Other 9.33 M x 5.75 M
  • Lower - Other 2.1 M x 1.17 M
  • Lot Dimensions 30 x 77.2 FT
  • Inclusions Dryer, Freezer, Stove, Washer, Refrigerator
  • Heating/AC Forced air, Natural gas, Central air conditioning
  • Basement Unfinished
  • Listing Broker INNOVATION REALTY LTD.
  • MLSID X12600358