450 Tremblay Road

Eastway Gardens/Industrial Park, Ottawa, K1G0C9

$825,000
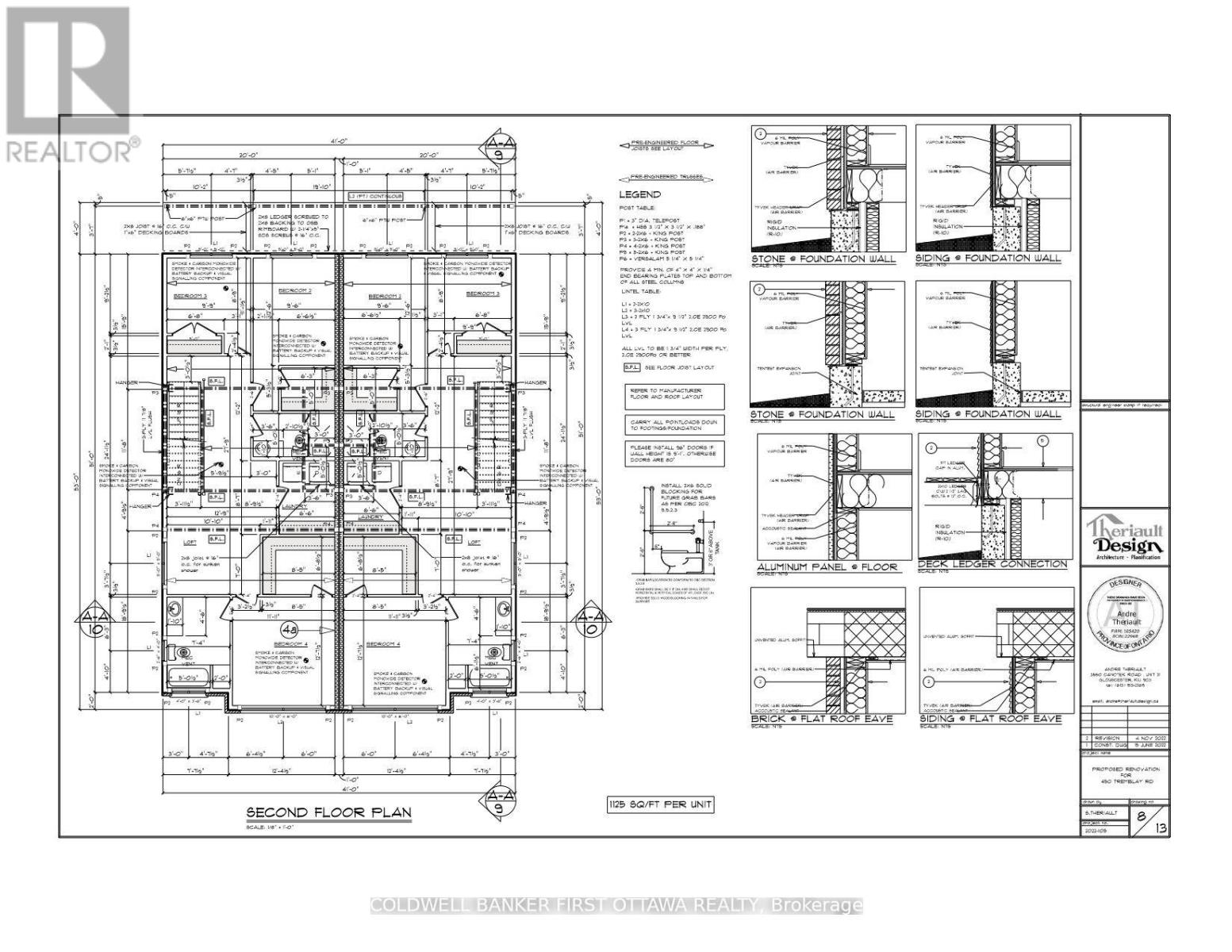
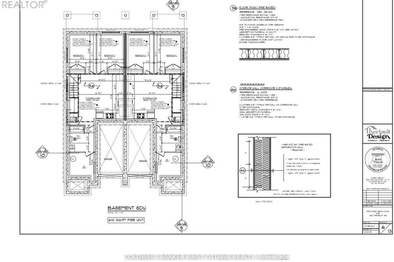
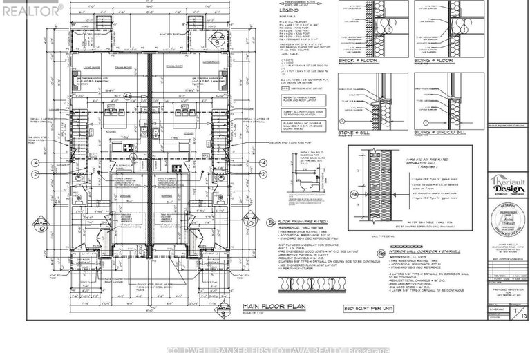
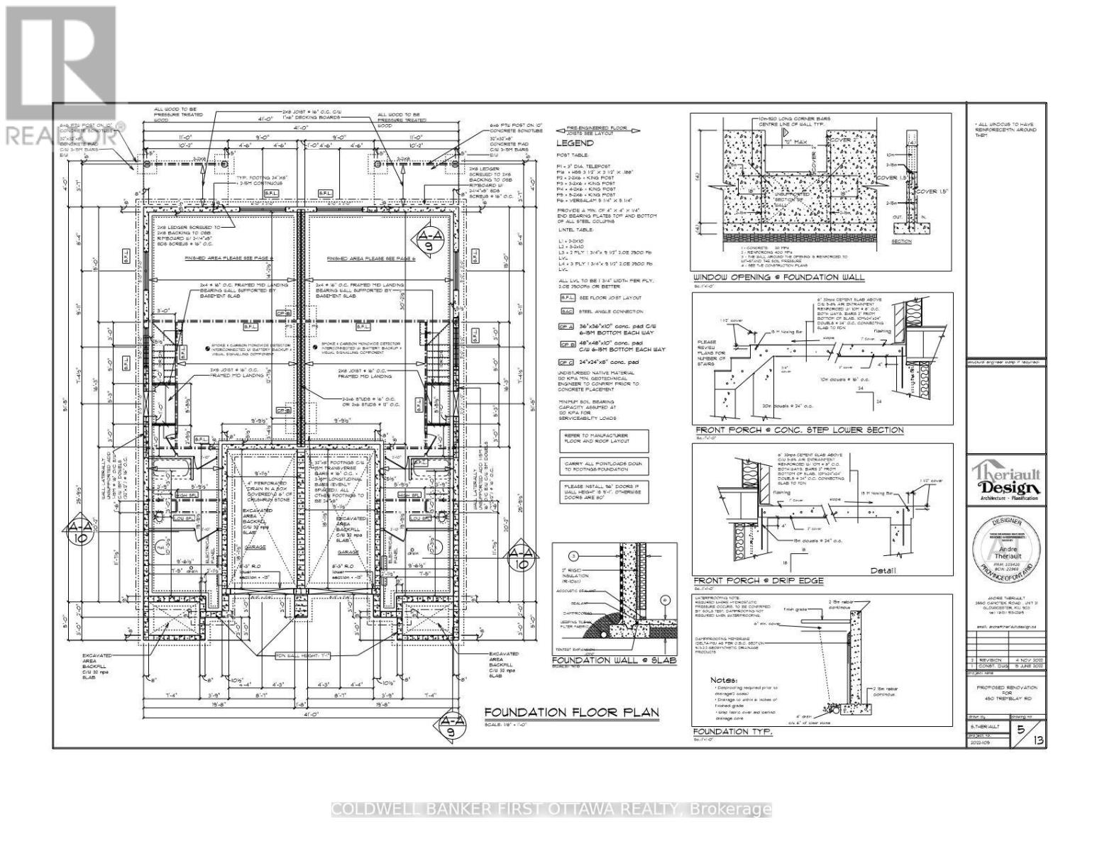
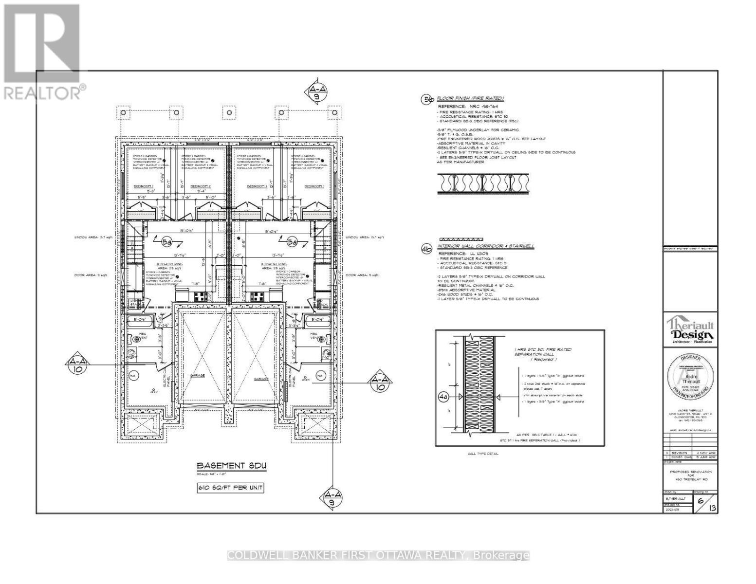
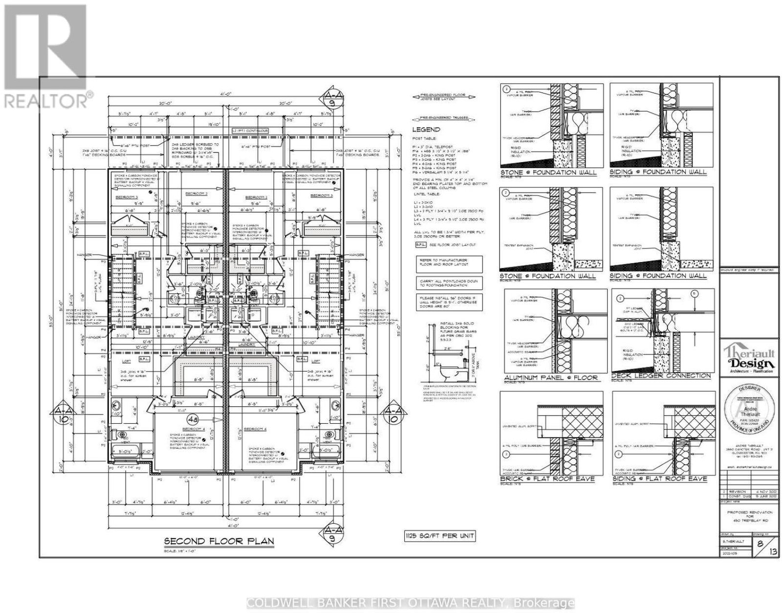
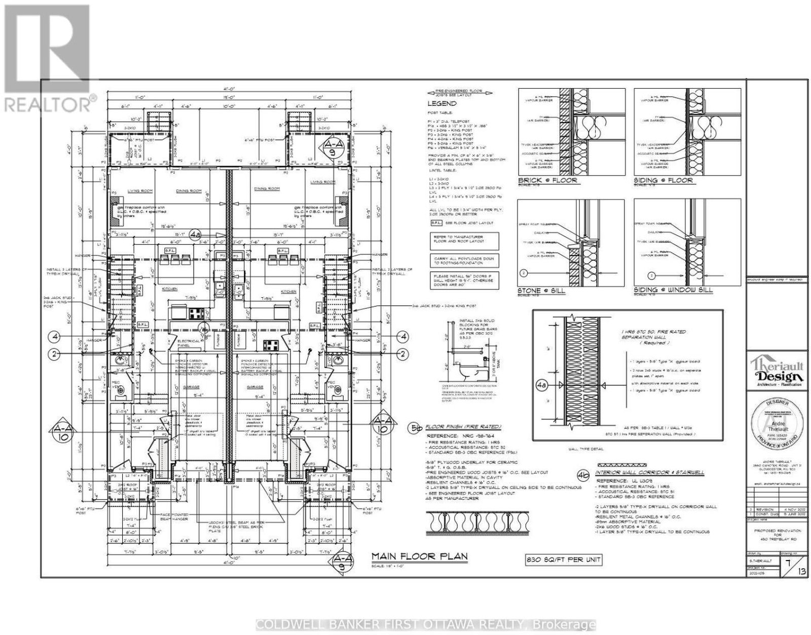
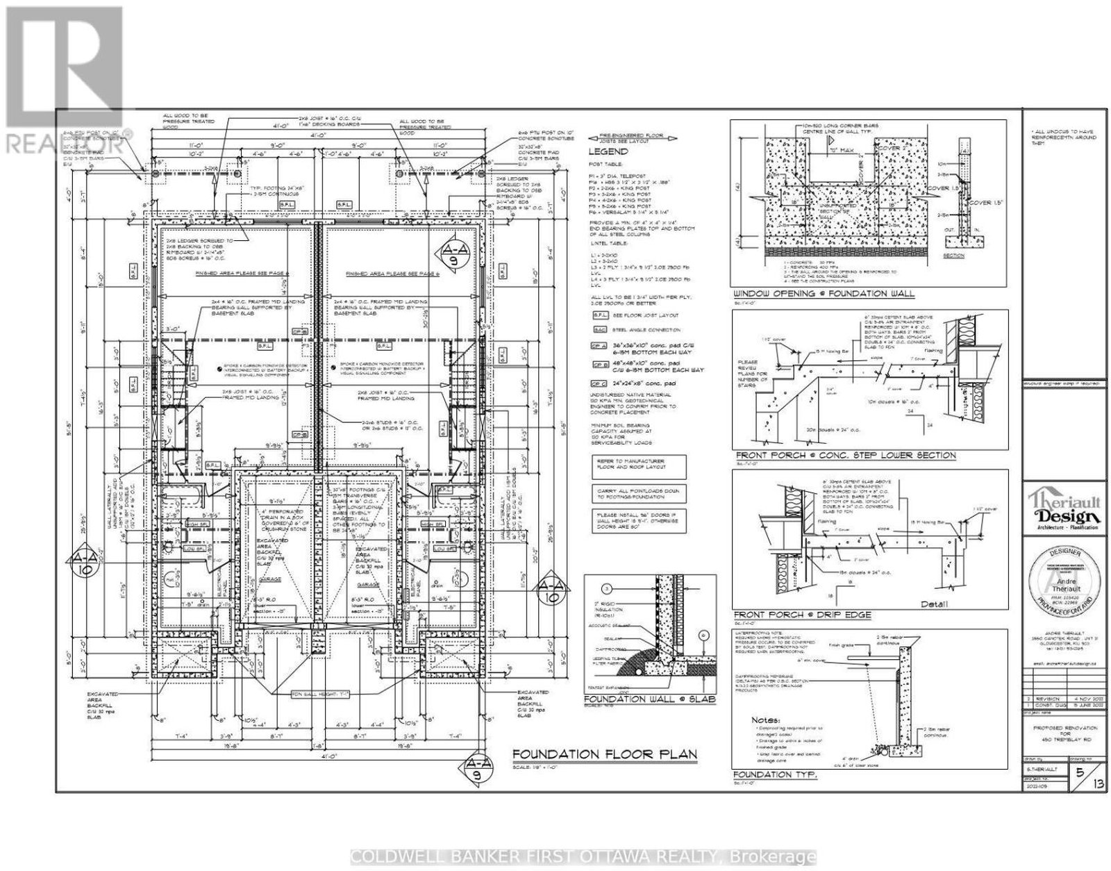
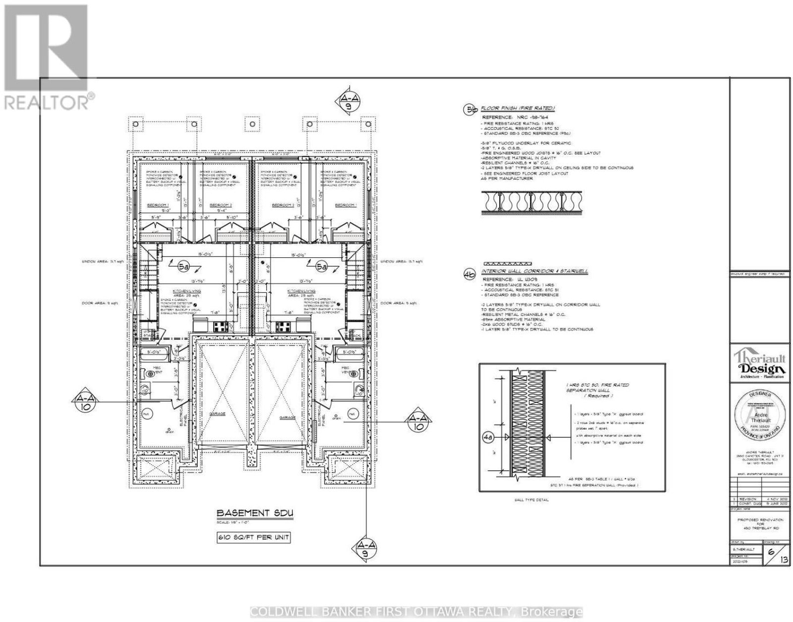
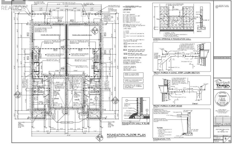
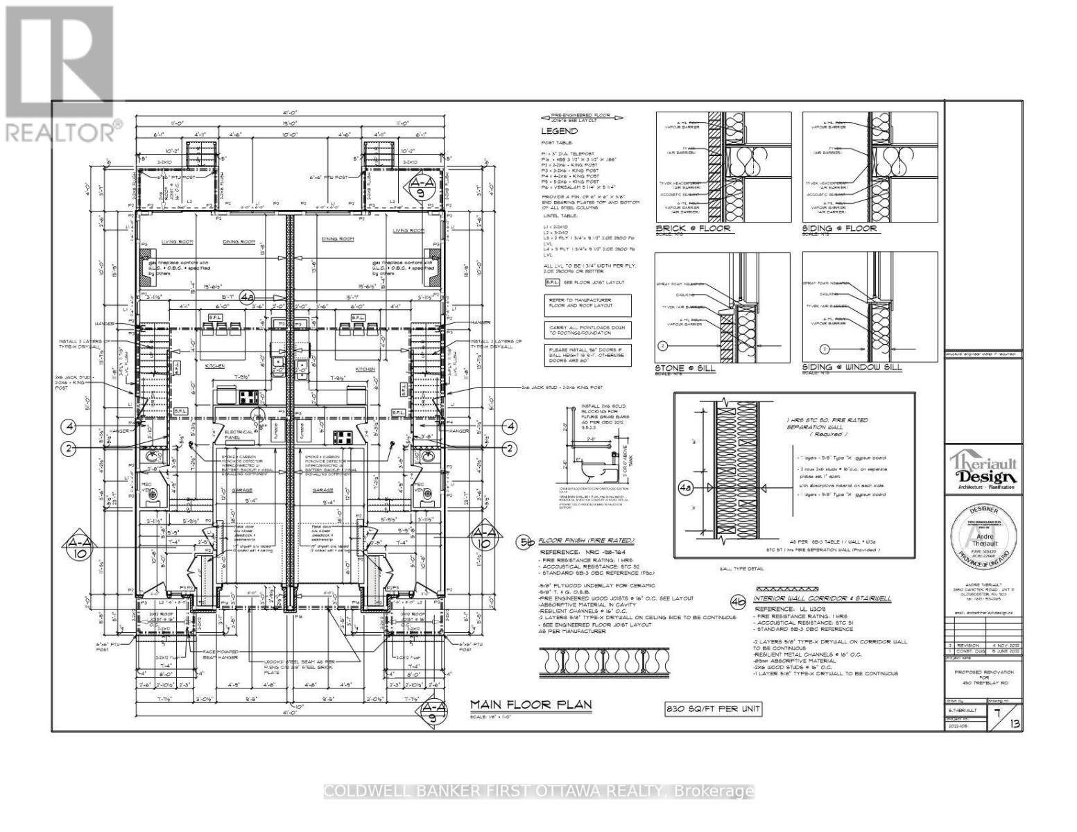
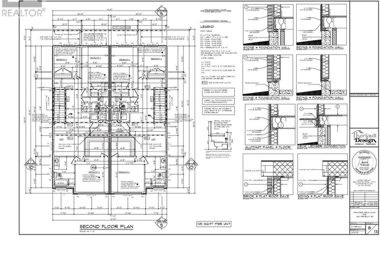
Permit ready and ready to build! A rare corner lot offering exceptional potential in a highly sought-after location. With severance already in place to build legal semi-detached duplexes, this property presents an outstanding opportunity for builders, developers, or investors looking to capitalize on Ottawa's growing urban market.This property is ideally situated steps from the Train Yards, offering access to a wide array of retail shops, restaurants, and services. Commuters will appreciate being within walking distance to the LRT, St Laurent shopping center, and just a short drive to downtown Ottawa, Costco, and Ottawa University, ensuring convenience and connectivity to all parts of the city.Included with the listing are survey, grading plan, and floorplans, providing a head start on your next project. The corner lot location enhances design flexibility, offering multiple frontages and excellent exposure.Whether you're looking to build for resale, rental income, or long-term investment, 450 Tremblay Road delivers the ideal blend of location, infrastructure, and development readiness.Don't miss this rare opportunity in one of Ottawa's most accessible and amenity-rich neighbourhoods! R3 U Zoning.

4
BEDS

2
BATHS
 
Let's Talk About
Your Dream Home
613-369-8314
info@rachelhammer.com
  • Main - Living room 4.67 M x 4.62 M
  • Main - Kitchen 5.48 M x 4.14 M
  • Main - Dining room 3.98 M x 2.38 M
  • Main - Primary Bedroom 4.69 M x 3.37 M
  • Main - Bedroom 2 3.65 M x 2.74 M
  • Main - Bathroom 2.74 M x 2.13 M
  • Lower - Bathroom 1.91 M x 1.32 M
  • Lower - Laundry room 3.12 M x 3.68 M
  • Lower - Living room 4.5 M x 3.23 M
  • Lower - Kitchen 3.68 M x 3.23 M
  • Lower - Bedroom 3 3 M x 3.68 M
  • Lower - Bedroom 4 4.29 M x 2.92 M
  • Lot Dimensions 60 x 99 FT
  • Heating/AC Forced air, Natural gas, Central air conditioning
  • Basement Finished
  • Listing Broker COLDWELL BANKER FIRST OTTAWA REALTY
  • MLSID X12600196