106 Snowbird Lane

Fitzroy Ward (South East), Ottawa, K0A2H0

$449,900
Warm and welcoming 3-bedroom bungalow, lovingly cared for by the same family for over 30 years, set on a private, tree-lined 0.5 acre lot in Marathon Village. Enjoy the perfect balance of rural peace and neighbourhood convenience with quick access to Carp and the 417. Inside, the bright open-concept living and dining area features a cozy wood-burning fireplace, a bay window and flows into a spacious kitchen overlooking the backyard. Three comfortable bedrooms and a 4-piece bathroom complete the main level. Key updates include roof shingles (2015 approx.) and a new furnace (2024), offering added peace of mind.The unfinished lower level has great potential. An oversized, insulated detached garage is heated with a wood stove and adds fantastic flexibility for hobbies, storage, or future projects.

3
BEDS

1
BATH
 
Let's Talk About
Your Dream Home
613-369-8314
info@rachelhammer.com
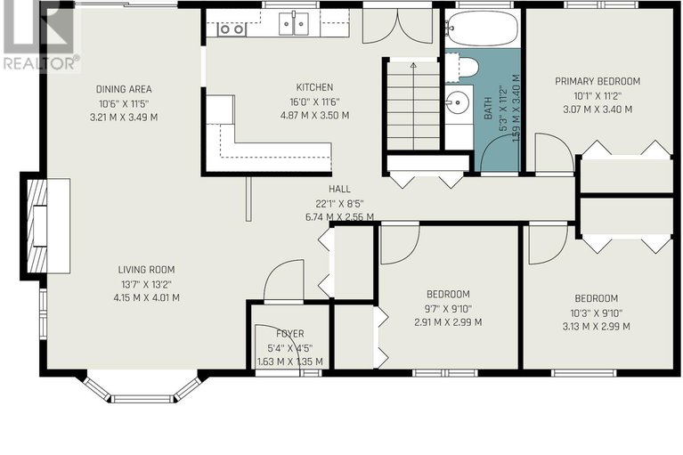
  • Main - Living room 4.27 M x 4.01 M
  • Main - Dining room 3.78 M x 3.17 M
  • Main - Kitchen 4.37 M x 3.51 M
  • Main - Bedroom 3.2 M x 3.25 M
  • Main - Bedroom 2 3.2 M x 2.69 M
  • Main - Bedroom 3 3.05 M x 2.92 M
  • Main - Bathroom 3.51 M x 1.55 M
  • Main - Foyer 4.04 M x 1.55 M
  • Lot Dimensions 100 x 231 FT
  • Inclusions Dishwasher, Dryer, Stove, Washer, Refrigerator
  • Heating/AC Forced air, Propane, Central air conditioning
  • Basement Unfinished
  • Listing Broker ROYAL LEPAGE TEAM REALTY
  • MLSID X12560972