24 Lansfield Way

Tanglewood, Ottawa, K2G3V8

$895,000
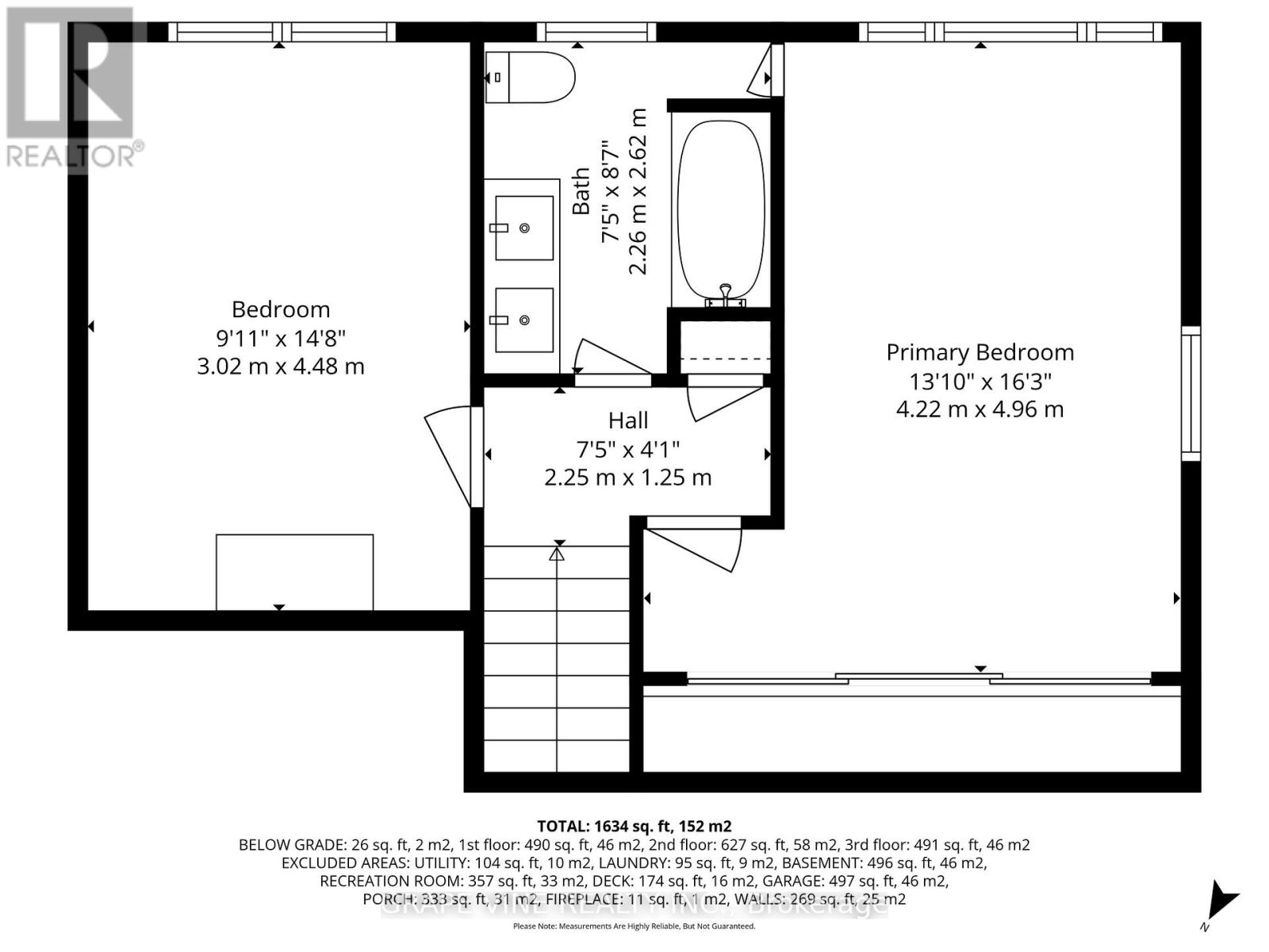
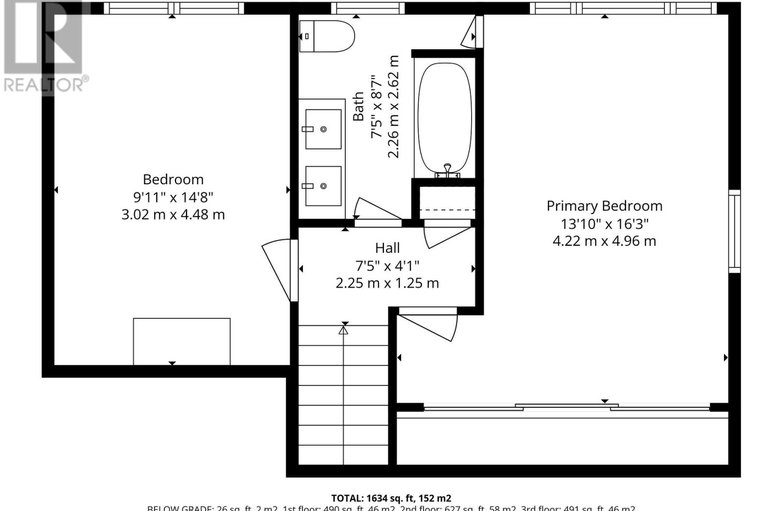
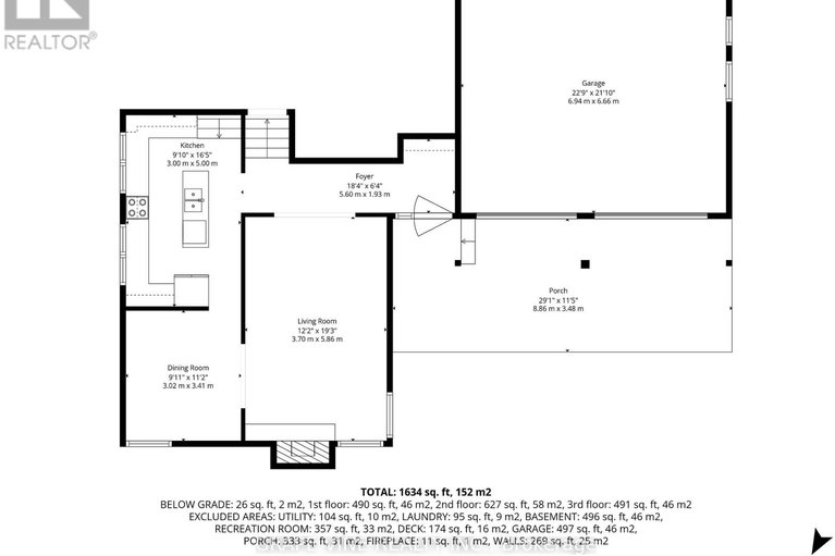
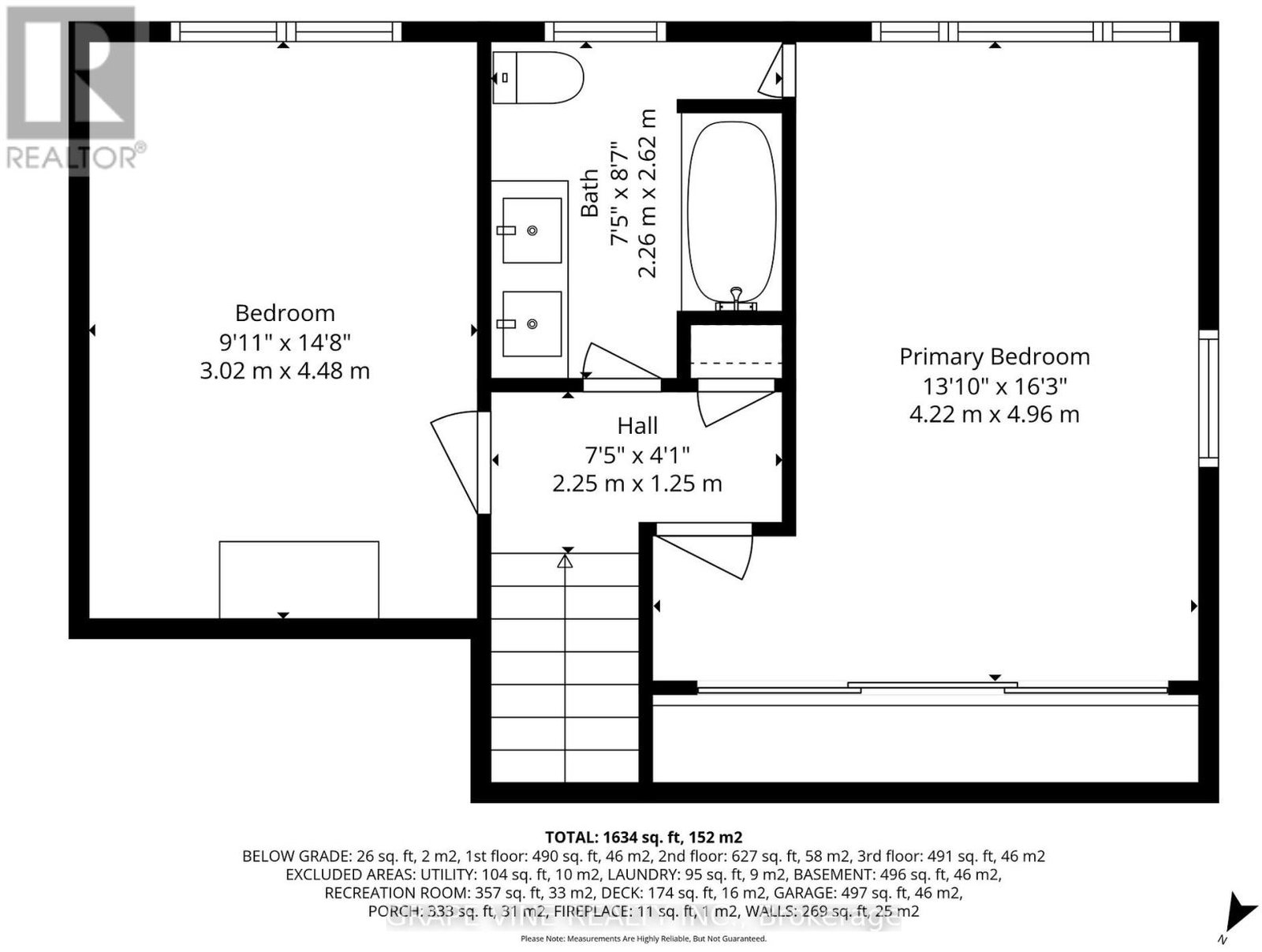
A well-maintained 4-bed, 2.5-bath back-split on a deep, private lot with no rear neighbours, backing onto the hydro corridor. Built in 1975 and updated throughout, the home offers approx. 1,500 sq ft above grade plus a mostly finished basement (ceiling not installed).Key Features: Oversized 2222 double garage - rare for the area and ideal for a workshop, storage, or toys Back-split design with three functional living levels plus basement Updated mechanicals: Windows (2019), Furnace (2019), AC (2020), Electrical panel (2023) Interior updates: Main-floor flooring (2020), Bedroom/upper-hall carpet (2024), Basement flooring (2024), Select fresh paint/finishes, the Kitchen (2022) and the attic insulation (2022) Exterior upgrades: Rebuilt deck (2024), fully replaced garage slab (2024), healthy hedgerows (2020) Bonus: Hot tub (as-is), excellent privacy, quiet crescent, corner lot Layout: Entry level includes living, kitchen, and dining areas. Upper level has two bedrooms and a full bath. Lower level features a family room, two bedrooms, and another full bath with sliding-door access to the deck and backyard. Basement is mostly finished with walls and flooring in place.Lot:Wide, deep lot with no future rear development - ideal for families, pets, gardeners, or anyone wanting extra space while staying in the city. Location:Quiet residential crescent with quick access to Hunt Club, Woodroffe, Merivale, transit, shopping, schools, Algonquin College, the Nepean Sportsplex, and other recreation.A solid, updated home in a prime west-end location - move-in ready with room to personalize.

4
BEDS

3
BATHS
 
Let's Talk About
Your Dream Home
613-369-8314
info@rachelhammer.com
  • Main - Living room 3.7 M x 5.86 M
  • Main - Dining room 3.1 M x 3.41 M
  • Main - Kitchen 3 M x 5 M
  • Main - Office 3.01 M x 4.47 M
  • Main - Bedroom 2.69 M x 5.11 M
  • Main - Bedroom 2.71 M x 3.3 M
  • Lower - Recreational, Games room 4.27 M x 7.82 M
  • Lot Dimensions 62 x 100 FT
  • Heating/AC Forced air, Natural gas, Central air conditioning
  • Basement Partially finished
  • Listing Broker GRAPE VINE REALTY INC.
  • MLSID X12560900