6349 St Louis Drive

Hiawatha Park/Convent Glen, Ottawa, K1C2X9

$615,000
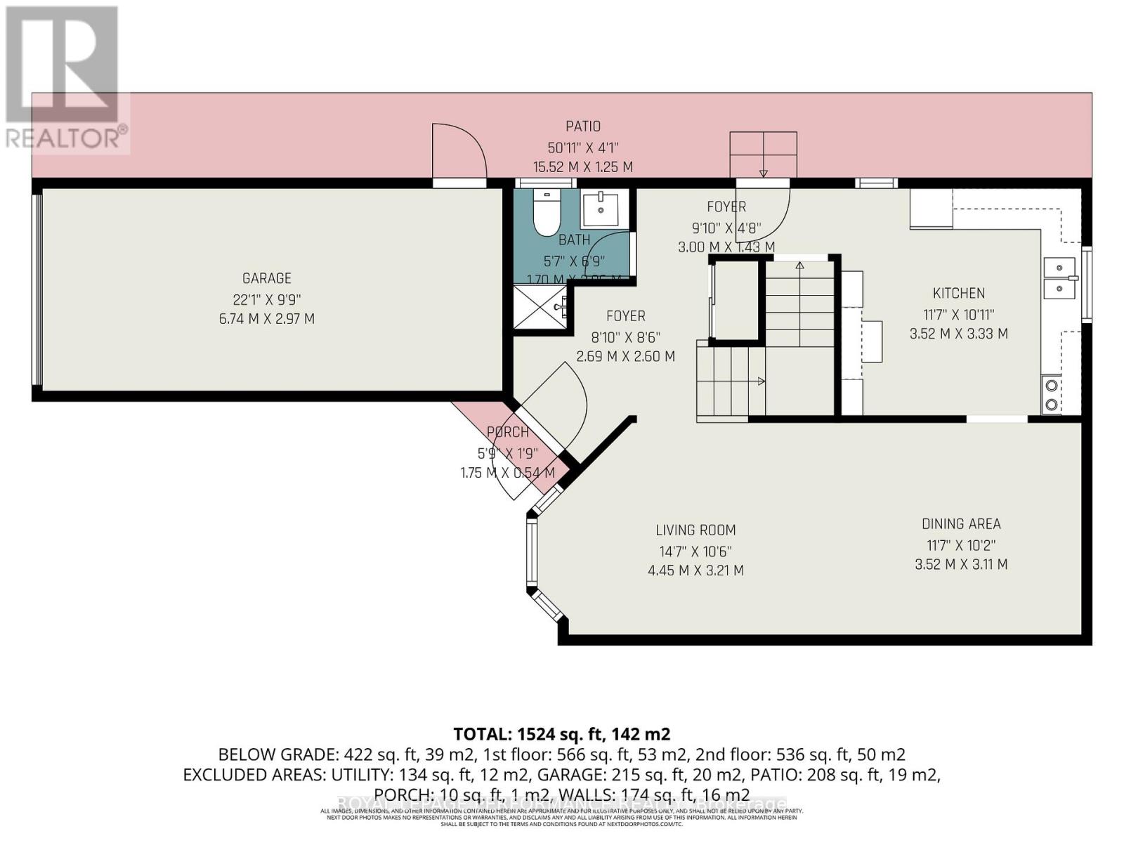
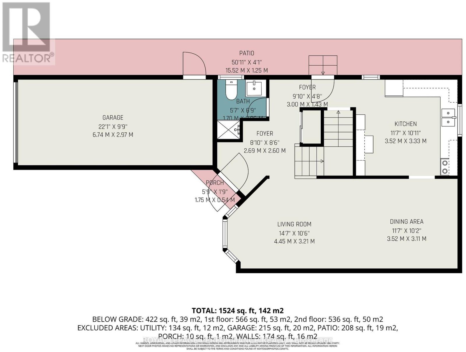
Wonderful opportunity to own a single family home offering 3 bedrooms and 2 full bathrooms along with a garage and a spacious yard! This home is nestled in a highly desirable community and just a short walk to the Ottawa River Pathway. The main level offers a large kitchen with ample cupboard and counter space, a renovated full bathroom and a combined living room/dining room offering you tons of space and versatility for those family gatherings and that large dining room table! The upstairs includes 3 good sized bedrooms and another renovated bathroom. The partially finished lower level features a roomy recreation area, perfect for customizing to your liking plus a laundry room. Step outside to your fenced yard and imagine the potential it holds. This home is conveniently situated near schools, shops, and parks and backs onto Bruyere Long-Term Care Home. Recent updates include: 3 new windows (2025), new vinyl flooring in hall entry and kitchen (2025), A/C (2020).

3
BEDS

2
BATHS
 
Let's Talk About
Your Dream Home
613-369-8314
info@rachelhammer.com
  • Main - Living room 4.22 M x 3.12 M
  • Main - Dining room 3.25 M x 3.12 M
  • Main - Kitchen 3.73 M x 3.33 M
  • Main - Bathroom 2.27 M x 1.65 M
  • Second - Primary Bedroom 4.48 M x 3.19 M
  • Second - Bedroom 2 3.06 M x 2.84 M
  • Second - Bedroom 3 2.93 M x 2.77 M
  • Second - Bathroom 2.7 M x 2.62 M
  • Lower - Family room 5.33 M x 3.5 M
  • Lot Dimensions 33.1 x 110 FT
  • Inclusions Dishwasher, Dryer, Hood Fan, Stove, Washer, Refrigerator
  • Heating/AC Forced air, Natural gas, Central air conditioning
  • Basement Partially finished
  • Listing Broker ROYAL LEPAGE PERFORMANCE REALTY
  • MLSID X12559720