12121 Liscumb Road

North Dundas (Winchester) Twp, North Dundas, K0C2K0

$415,000
Realize the potential in this all brick 3 bedroom bungalow with an EXTRA large shop! With views across the fields to Winchester, this home sits on an almost 1 acre lot only 5 minutes from town. The home offers a metal roof, primary bedroom with 2piece ensuite and a cozy woodstove in the basement. There is also a side covered porch which allows you to enjoy your morning coffee while watching the sunrise. The lower level offers a family room and plenty of extra storage. DID YOU SEE THE SHOP? It has two 10ft doors, is insulated, heated with a furnace and a woodstove, and plenty of room for all your needs. With mature trees on the property, this home in the country has a lot to offer. The location is excellent - only 1km to County rd 31 (Bank st South), 5 minutes to Winchester or 30 minutes to Ottawa. Very central to the 401 or Cornwall as well. The interior of the home requires some updating, which gives you the opportunity to finish to your taste. Home is being sold in as-is condition. Call today to book your own private viewing.

3
BEDS

2
BATHS
 
Let's Talk About
Your Dream Home
613-369-8314
info@rachelhammer.com
  • Main - Kitchen 5.59 M x 3.22 M
  • Main - Living room 5.88 M x 3.24 M
  • Main - Dining room 2.77 M x 3.22 M
  • Main - Primary Bedroom 3.99 M x 3.17 M
  • Main - Bedroom 2.85 M x 3.18 M
  • Main - Bedroom 3.52 M x 2.25 M
  • Main - Mud room 3.61 M x 3.26 M
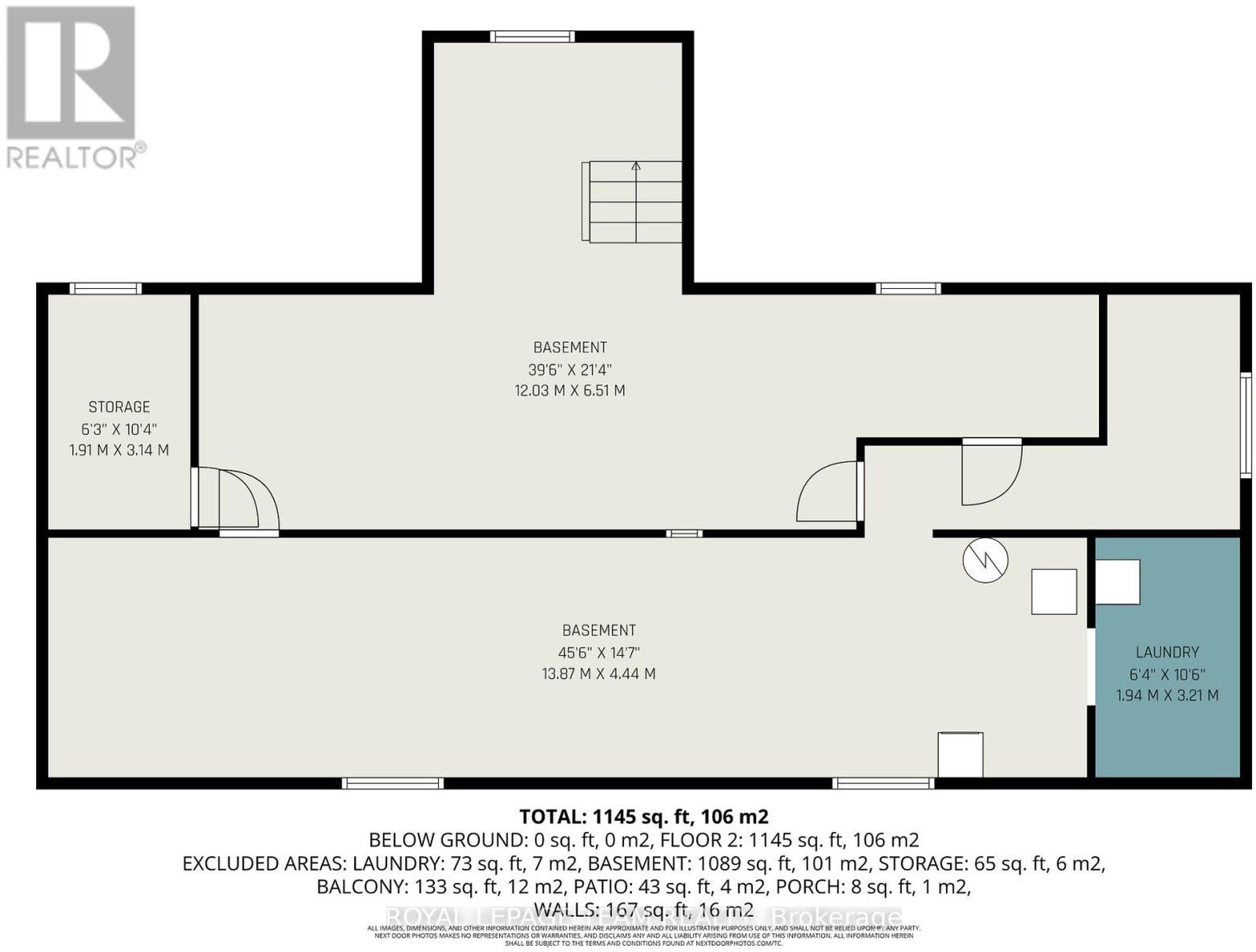
  • Lower - Recreational, Games room 12.03 M x 6.51 M
  • Lot Dimensions 258.9 x 148.2 Acre
  • Inclusions Water Heater, Stove, Refrigerator
  • Heating/AC Forced air, Propane, None
  • Basement Partially finished
  • Listing Broker ROYAL LEPAGE TEAM REALTY
  • MLSID X12559670