18 Longshire Circle

Longfields, Ottawa, K2J4K7

$669,900
Major renovations done in the last 5 years, over $150,000 spent in kitchen, appliances, ensuite bath, roof, triple paned windows, doors, landscaping and more.... Welcome to this beautifully updated 2-storey home in the heart of Barrhaven! Perfectly situated within walking distance to shops, restaurants, schools, parks, and convenient transit, this home combines comfort with everyday convenience. Inside, you'll find a stylish, modern kitchen with sleek cabinetry, ample pantry space, multiple organizer drawers designed for functionality and high end built in appliances. The open-concept living and dining area is bright and inviting ideal for both family gatherings and entertaining. Patio doors off the kitchen lead to a large fenced backyard complete with a covered overhang, perfect for outdoor living year-round. Upstairs offers three spacious bedrooms, including a primary retreat with a walk-in closet and a fully renovated ensuite featuring a walk-in shower with built-in bench and elegant vanity. The fully finished basement adds even more living space with a versatile den, additional room, a kitchenette, laundry space, and plenty of storage. With new triple paned windows and doors (2023), this home is move-in ready and designed for modern living. Roof (front) 2012 and Roof (back) 2021, Furnace and A/C 2012. 24 Hours Irrevocable on all offers as per Form 244

3
BEDS

4
BATHS
 
Let's Talk About
Your Dream Home
613-369-8314
info@rachelhammer.com
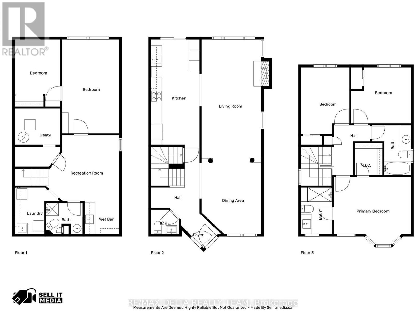
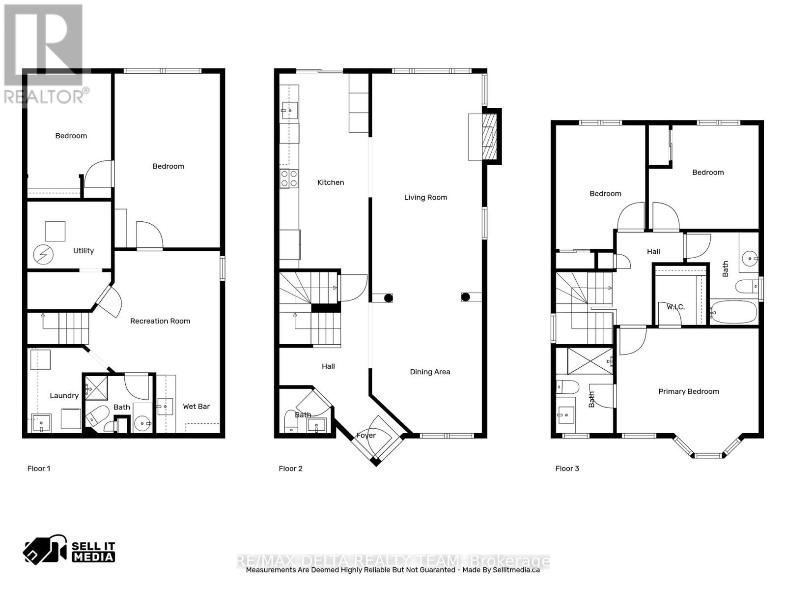
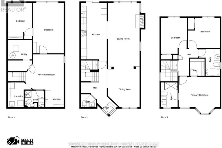
  • Main - Living room 3.36 M x 7.03 M
  • Main - Dining room 3.36 M x 3.94 M
  • Main - Kitchen 2.72 M x 5.94 M
  • Main - Other 1.77 M x 1.72 M
  • Second - Primary Bedroom 4.33 M x 3.8 M
  • Second - Other 1.54 M x 1.81 M
  • Second - Bedroom 2 3.35 M x 3.16 M
  • Second - Bedroom 3 2.71 M x 3.77 M
  • Lower - Utility room 2.56 M x 2.05 M
  • Lower - Recreational, Games room 4.02 M x 3.71 M
  • Lower - Other 1.95 M x 1.85 M
  • Lower - Laundry room 2.51 M x 2.61 M
  • Lower - Den 3.22 M x 5.31 M
  • Lower - Den 2.55 M x 3.8 M
  • Lot Dimensions 35 x 111.5 FT ; 0
  • Inclusions Cooktop, Dishwasher, Microwave, Oven, Window Coverings, Refrigerator
  • Heating/AC Forced air, Natural gas, Central air conditioning
  • Basement Finished
  • Listing Broker RE/MAX DELTA REALTY TEAM
  • MLSID X12558820