2997 Linton Road

Riverside Park South, Ottawa, K1V8H1

$698,500
Welcome to this inviting 2+2 bedroom, 2-bathroom home, ideally located in Ottawa's desirable Riverside Park South neighbourhood. Situated near McCarthy Road and Southmore Drive East, this residence offers easy access to schools, parks, shopping, and transit. Step inside to a bright and functional layout, featuring a spacious living/dining area perfect for family gatherings. The functional kitchen connects seamlessly into the dining space, creating a warm and welcoming atmosphere. Also on the main floor, you'll find two comfortable bedrooms, including a spacious primary, and a 4-piece bathroom. The fully finished basement adds incredible value, offering 2 additional bedrooms, an additional 4-piece bath, a dedicated laundry area, and flexible space perfect for teens, guests, or home office use. The large and beautiful backyard backs directly onto Linton Park, offering no rear neighbours, enhanced privacy, and a peaceful view - an ideal setting for relaxing, entertaining, or watching the kids play. Parking is a breeze with a built-in 1-car garage plus a driveway that accommodates 2 additional vehicles, providing ample space for families and visitors. This is a rare opportunity to own a spacious, updated home in a family-friendly neighbourhood with all amenities close by. New heat pump installed in 2024. Extras include: Heat Pump, all windows, energy audit, garage floor, foundation repairs, shingle replacement + reinforcement of 2 by 4's under roof, and new garage door - all completed in 2024. 24 hours irrevocable on all offers.

4
BEDS

2
BATHS
 
Let's Talk About
Your Dream Home
613-369-8314
info@rachelhammer.com
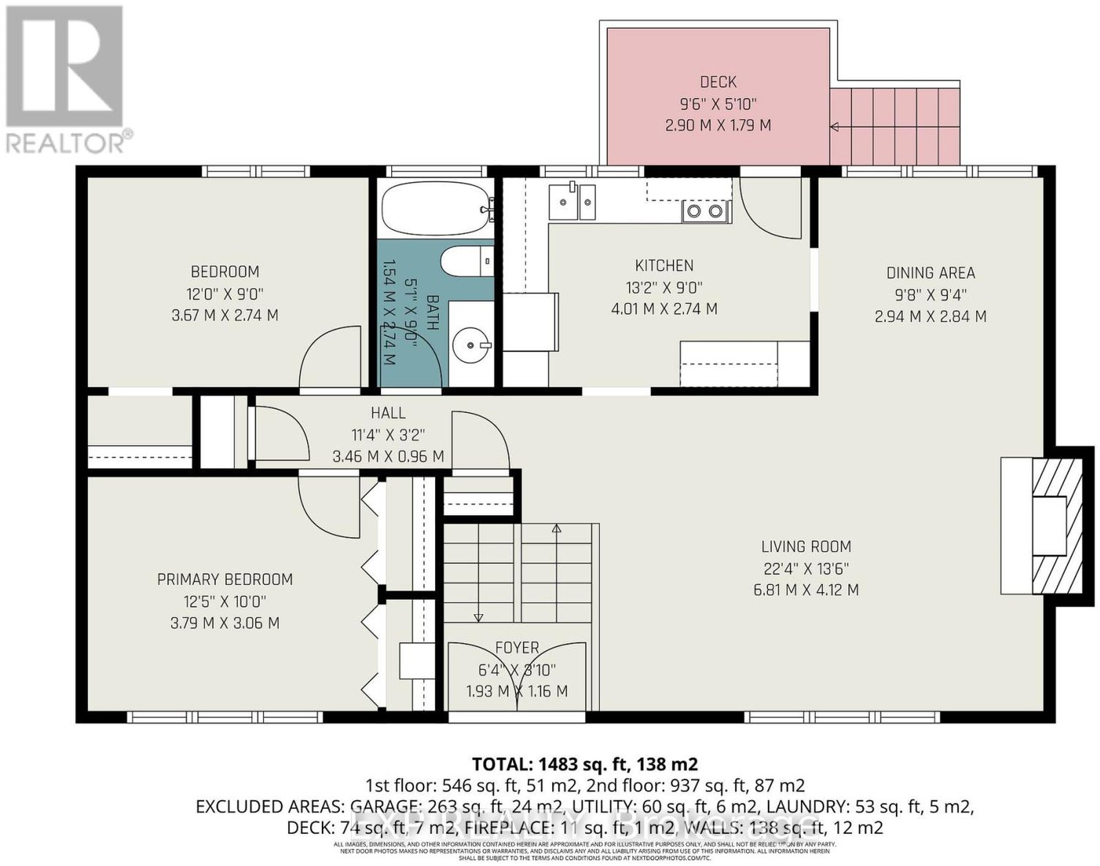
  • Main - Foyer 6.4 M x 3.1 M
  • Main - Living room 22.4 M x 13.6 M
  • Main - Dining room 9.8 M x 9.4 M
  • Main - Kitchen 13.2 M x 9 M
  • Main - Bathroom 5.1 M x 9 M
  • Main - Other 11.4 M x 3.2 M
  • Main - Bedroom 2 12 M x 9 M
  • Main - Primary Bedroom 12.5 M x 10 M
  • Lower - Utility room 4.7 M x 11.11 M
  • Lower - Bedroom 3 8.5 M x 9.11 M
  • Lower - Bedroom 4 10.3 M x 9.11 M
  • Lower - Bathroom 5.2 M x 8.7 M
  • Lower - Laundry room 5.11 M x 8.7 M
  • Lower - Other 11.5 M x 5.6 M
  • Lower - Other 11.1 M x 11.11 M
  • Lot Dimensions 53 x 100 FT
  • Inclusions Dryer, Hood Fan, Stove, Washer, Window Coverings, Refrigerator
  • Heating/AC Heat Pump, Forced air, Electric, Natural gas, Central air conditioning
  • Basement Finished
  • Listing Broker EXP REALTY
  • MLSID X12556724