557 Bayview Drive

Constance Bay, Ottawa, K0A3M0

$788,900
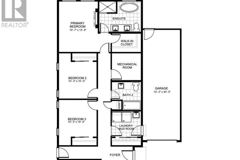
Nestled in the heart of Constance Bay, this is a rare opportunity to own a brand-new custom bungalow on an expansive 54' x 250' lot. Built by Bay Design Construction, this thoughtfully designed home offers modern comfort and quality craftsmanship just a one-minute walk from the picturesque Augers Beach - known to be the nicest beach in the area. The open-concept main floor showcases 9-ft ceilings and a striking cathedral ceiling in the great room and dining area, creating an airy atmosphere. A 23' x 14' front deck with a wood-burning fireplace makes for an ideal setting with beautiful river views. Inside, radiant in-floor heating provides year-round comfort throughout the home, complemented by gas-forced air. The kitchen features quartz countertops, an oversized pantry, and an island that is perfect for gathering. The adjoining dining area offers a seamless flow into the bright great room, anchored by an electric fireplace and large front windows framing serene natural views. Luxury vinyl plank flooring extends throughout the living areas and bedrooms, while both bathrooms and the laundry room feature durable tile. The primary suite has a walk-in closet and a spa-inspired ensuite complete with quartz surfaces, a soaking tub, and a step-in shower. The two additional bedrooms share a stylish 4-piece bathroom, and all closets, including the entry and laundry, will include custom built-in organizers. A spacious mudroom with laundry and inside access to the attached garage ensures everyday convenience. The front of the home will be sodded in the spring, with a paved driveway to follow, and the property's forest-backed yard provides privacy and connection to nature. With its blend of craftsmanship, elegant finishes, and proximity to the river and local amenities, this exceptional new build offers the perfect balance of modern living and the natural beauty of Constance Bay.

3
BEDS

2
BATHS
 
Let's Talk About
Your Dream Home
613-369-8314
info@rachelhammer.com
  • Main - Family room 3.45 M x 4.44 M
  • Main - Dining room 3.35 M x 3.35 M
  • Main - Kitchen 3.53 M x 3.2 M
  • Main - Primary Bedroom 3.22 M x 4.19 M
  • Main - Bedroom 2 3.12 M x 3.04 M
  • Main - Bedroom 3 3.12 M x 3.04 M
  • Main - Other 3.09 M x 9.14 M
  • Lot Dimensions 54 x 250 FT|under 1/2 acre
  • Inclusions Dishwasher, Dryer, Microwave, Stove, Water Heater, Washer, Refrigerator
  • Heating/AC Radiant heat, Natural gas, Central air conditioning
  • Listing Broker ENGEL & VOLKERS OTTAWA
  • MLSID X12532480