Lot 5 1 Finch Street

Finch, North Stormont, K0C1K0

$544,900
NEW! NEW! NEW! A modern 2 bed 2 bath, bungalow with a garage spacious enough to hold 2 large cars! Be the very first to live in this new build right in the heart of Finch! Live the small town life with the modern luxuries, a home built with only the finest of craftsmanship. Enjoy the bike trails, arena, and walking trails, surrounding yourself with beautiful nature. Customizable finishes and layouts available - choose your preferred flooring, cabinetry, countertops, and more to create a home that truly reflects your style.

2
BEDS

2
BATHS
 
Let's Talk About
Your Dream Home
613-369-8314
info@rachelhammer.com
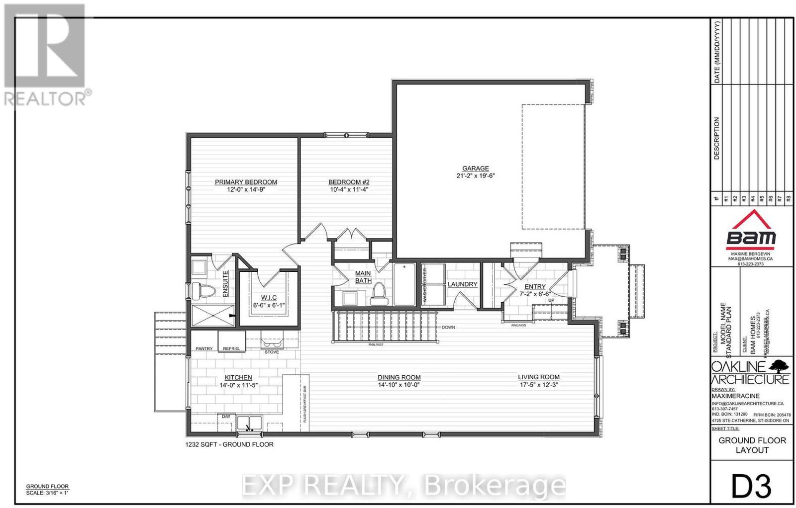
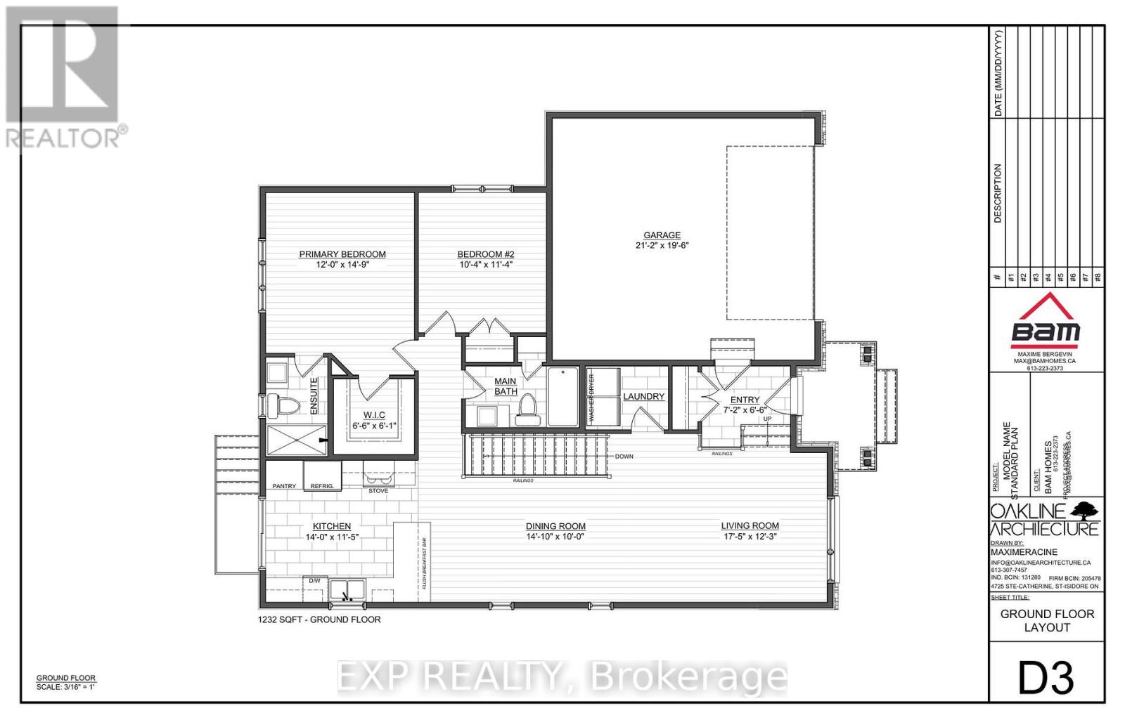
  • Main - Living room 5.33 M x 3.74 M
  • Main - Dining room 4.29 M x 3.04 M
  • Main - Kitchen 4.26 M x 3.5 M
  • Main - Primary Bedroom 4.5 M x 3.65 M
  • Main - Bedroom 2 3.16 M x 3.47 M
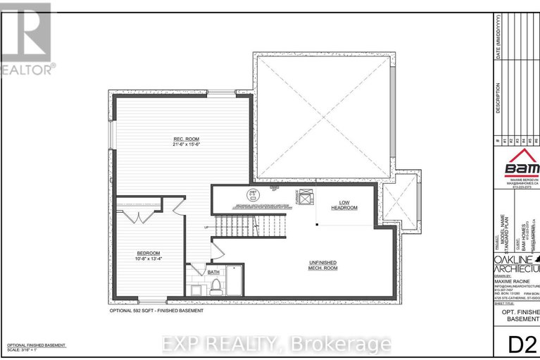
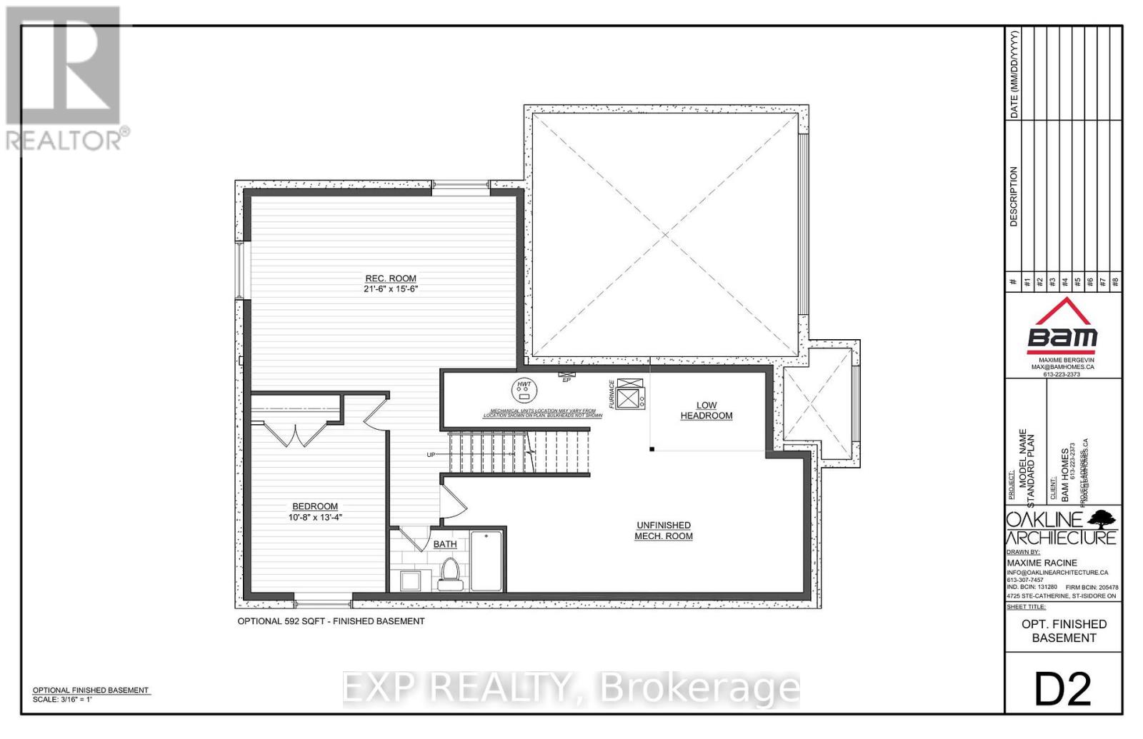
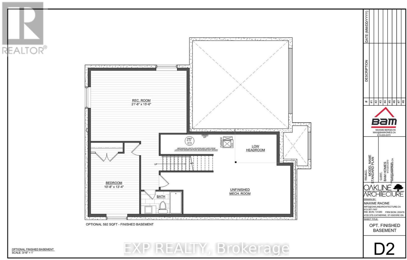
  • Lower - Recreational, Games room 6.58 M x 4.75 M
  • Lot Dimensions 50 x 115 FT
  • Heating/AC Forced air, Natural gas, None, Air exchanger
  • Basement Unfinished
  • Listing Broker EXP REALTY
  • MLSID X12527682