1022 Showman Street

Richmond, Ottawa, K0A2Z0

$1,040,000
Welcome to 1022 Showman St, The Hickory by Mattamy. Beautifully designed 4-bedroom home offering 2,634 sq. Ft. of above-grade living space on a premium lot backing onto protected green space. Built in 2022, this home blends thoughtful upgrades with timeless design, delivering both style and functionality for modern family living. Stunning hardwood throughout the main and second levels. The main floor layout includes an enclosed front office and a separate formal dining room. At the heart of the home, the spacious great room features a vaulted ceiling and a gas fireplace, seamlessly connecting to a chef's kitchen with dining table, an enclosed pantry and a convenient mudroom entry from the garage. Upstairs, the primary suite offers a serene retreat with a luxurious 5-piece ensuite featuring a soaker tub and walk-in closet. Three additional bedrooms, two with walk-ins, along with an upper-level laundry room, complete this thoughtfully designed floor plan. Enjoy outdoor living at its best with an oversized custom deck, a heated saltwater above-ground pool, a fully fenced (PVC) yard, and a natural gas BBQ line. The large driveway provides parking for four vehicles, plus an additional two in the garage. The unfinished basement presents endless possibilities for future expansion. Central Vac rough-in and additional washer/dryer hookup in basement.

4
BEDS

3
BATHS
 
Let's Talk About
Your Dream Home
613-369-8314
info@rachelhammer.com
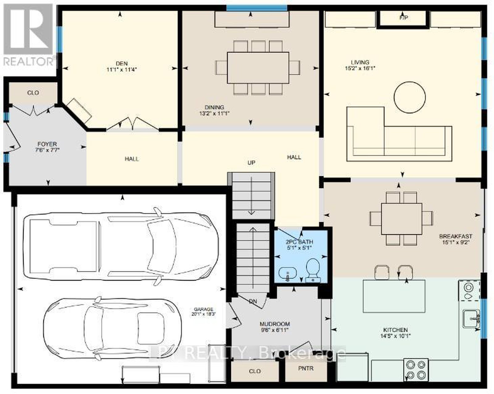
  • Main - Kitchen 4.39 M x 3.07 M
  • Main - Living room 4.9 M x 4.62 M
  • Main - Dining room 4.01 M x 3.37 M
  • Main - Eating area 4.6 M x 2.8 M
  • Main - Foyer 2.31 M x 2.27 M
  • Main - Mud room 2.91 M x 2.1 M
  • Main - Bathroom 1.56 M x 1.54 M
  • Main - Den 3.44 M x 3.38 M
  • Second - Bedroom 3 3.84 M x 3.39 M
  • Second - Bedroom 4 3.66 M x 3.07 M
  • Second - Bathroom 5.65 M x 1.85 M
  • Second - Bathroom 4.1 M x 2.15 M
  • Second - Laundry room 3.82 M x 2.43 M
  • Second - Primary Bedroom 6.13 M x 4.06 M
  • Second - Bedroom 2 4.42 M x 3.36 M
  • Lot Dimensions 43 x 88.6 FT
  • Inclusions Water softener, Dishwasher, Dryer, Hood Fan, Microwave, Stove, Washer, Refrigerator
  • Heating/AC Forced air, Natural gas, Central air conditioning
  • Basement Unfinished
  • Listing Broker REVEL REALTY INC.
  • MLSID X12513398