19 Gould Street

Ottawa West, Ottawa, K1Y2P1

$839,900
Welcome to this charming home in the heart of sought-after Wellington Village - the perfect blend of urban convenience and peaceful living! Just steps to Metro, popular restaurants, cafés, and bike paths, with easy access to Westboro, downtown, Tunney's Pasture, and the LRT. The first floor features a living room with a wood stove, an adjacent bedroom, and a completely renovated kitchen with new stainless steel appliances, granite countertops and a bathroom. The second floor features a kitchen and two bedrooms, offering excellent flexibility - ideal for extended family, guests, or a potential rental/income suite. The private backyard is a true retreat, perfect for relaxing or entertaining. Major updates provide peace of mind: owned hot water tank (2022), furnace (2023), roof (2020), A/C (2019), plus brand-new fridge, stove, washer, dryer, and dishwasher. The second floor was used as an Airbnb rental, and one of the bedrooms was converted into a kitchen. The space can be readily restored to its original layout upon the buyer's request. A rare opportunity to own a versatile, move-in ready home in one of Ottawa's most desirable neighbourhoods!

3
BEDS

2
BATHS
 
Let's Talk About
Your Dream Home
613-369-8314
info@rachelhammer.com
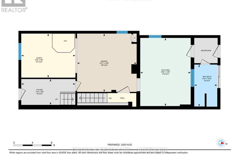
  • Main - Living room 3.68 M x 2.96 M
  • Main - Bedroom 3.68 M x 2.96 M
  • Main - Kitchen 3.43 M x 4.35 M
  • Main - Bathroom 4.31 M x 1.23 M
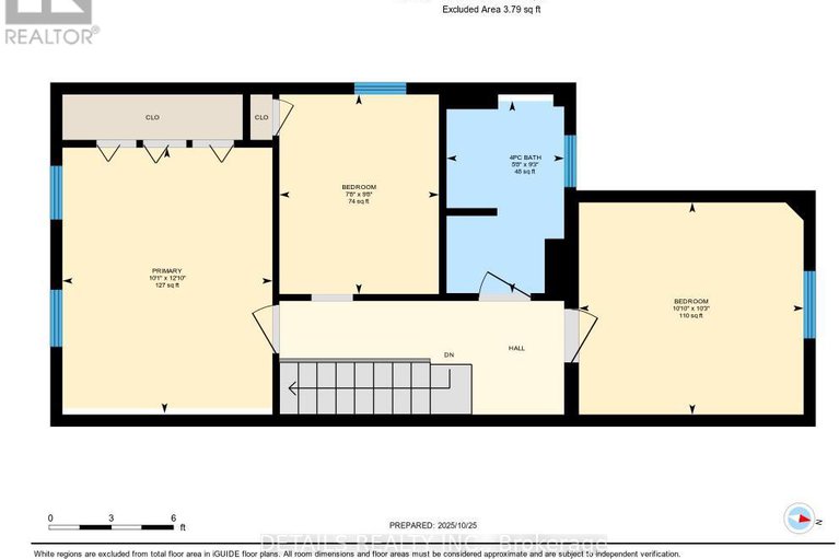
  • Second - Bedroom 2 3.11 M x 4.67 M
  • Second - Bedroom 3 3.43 M x 3.11 M
  • Second - Kitchen 2.62 M x 2.5 M
  • Second - Bathroom 2.31 M x 1.85 M
  • Lot Dimensions 25 x 100 FT
  • Inclusions Dishwasher, Dryer, Microwave, Stove, Washer, Refrigerator
  • Heating/AC Forced air, Wood, Central air conditioning
  • Basement Unfinished
  • Listing Broker DETAILS REALTY INC.
  • MLSID X12505554