60 Westpark Drive

Blackburn Hamlet, Ottawa, K1B3E5

$670,000
In the family for over 50 years. 2 Storey, 4 Bedrooms 21/2 Bathrooms Centre Hall Plan need cosmetic upgrades. Most windows and doors replaced (2010 Verdun), roof re-shingled 2009 with 30 years EKO Marathon Ultra. Retro bathrooms and kitchen. The bones are very good and the location is terrific. The property back on a walking trail leading to Glen Ogilvy and Sainte Marie school as well as the network of walking trails and cross country sky trails. Property sold AS WHERE IS/NO WARRANTY

4
BEDS

3
BATHS
 
Let's Talk About
Your Dream Home
613-369-8314
info@rachelhammer.com
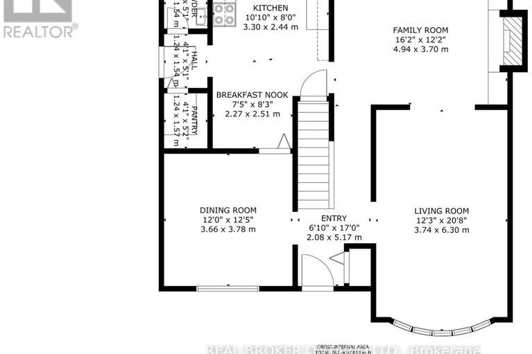
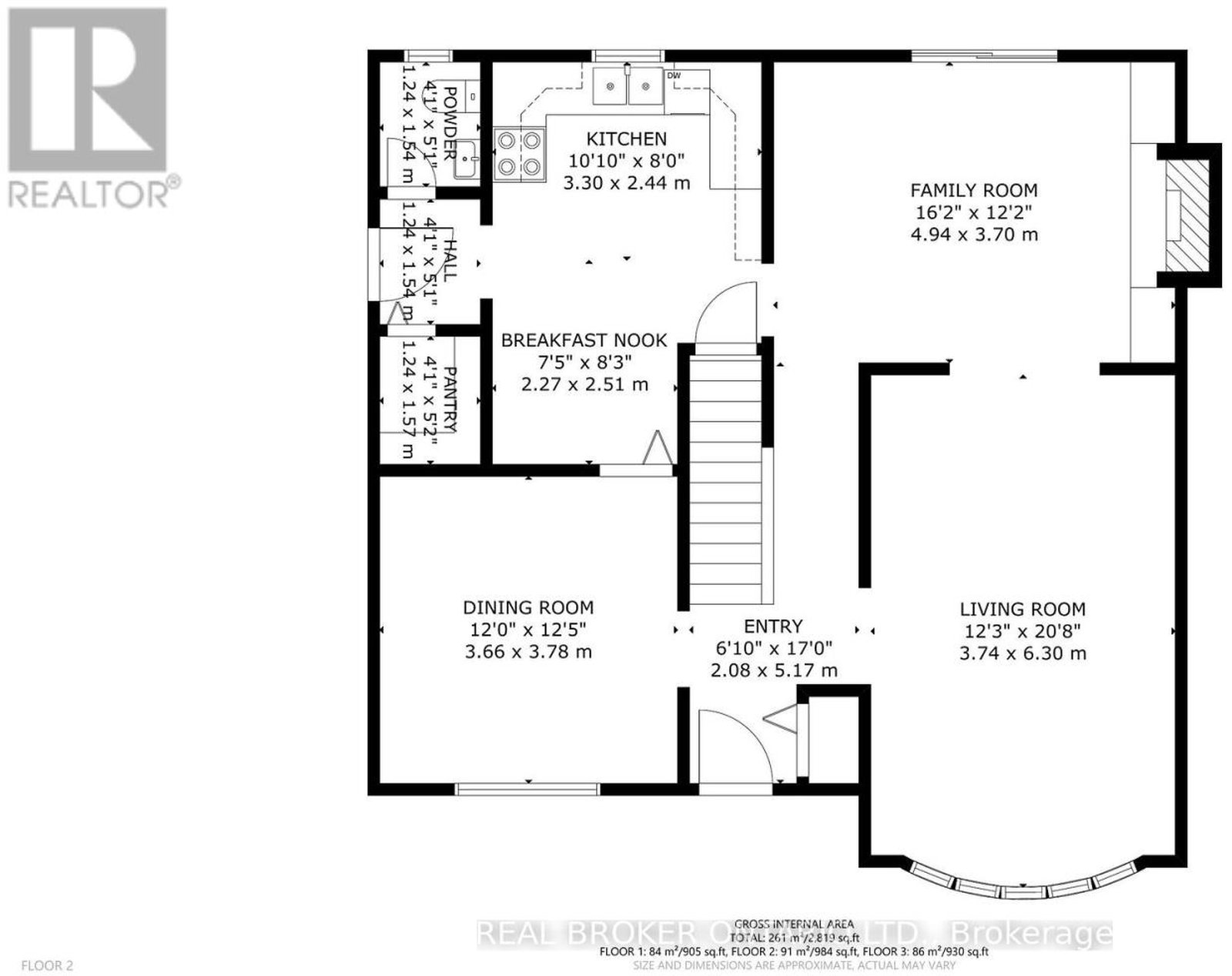
  • Main - Foyer 5.17 M x 2.08 M
  • Main - Dining room 3.66 M x 3.78 M
  • Main - Kitchen 3.3 M x 2.44 M
  • Main - Eating area 2.27 M x 2.51 M
  • Main - Living room 6.3 M x 3.74 M
  • Main - Family room 4.94 M x 3.7 M
  • Main - Bathroom 1.54 M x 1.24 M
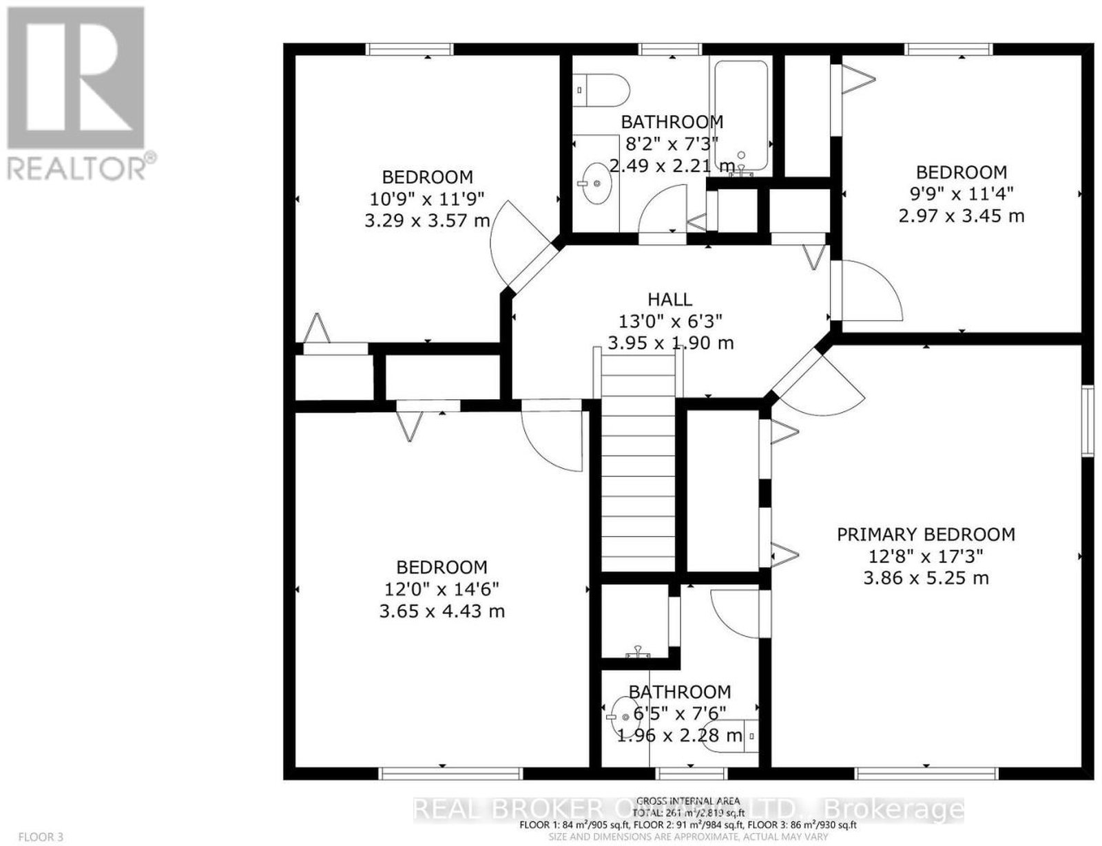
  • Second - Bedroom 4 3.45 M x 2.97 M
  • Second - Bathroom 2.49 M x 2.21 M
  • Second - Bathroom 2.28 M x 1.96 M
  • Second - Bedroom 5.25 M x 3.86 M
  • Second - Bedroom 2 4.43 M x 3.65 M
  • Second - Bedroom 3 3.57 M x 3.29 M
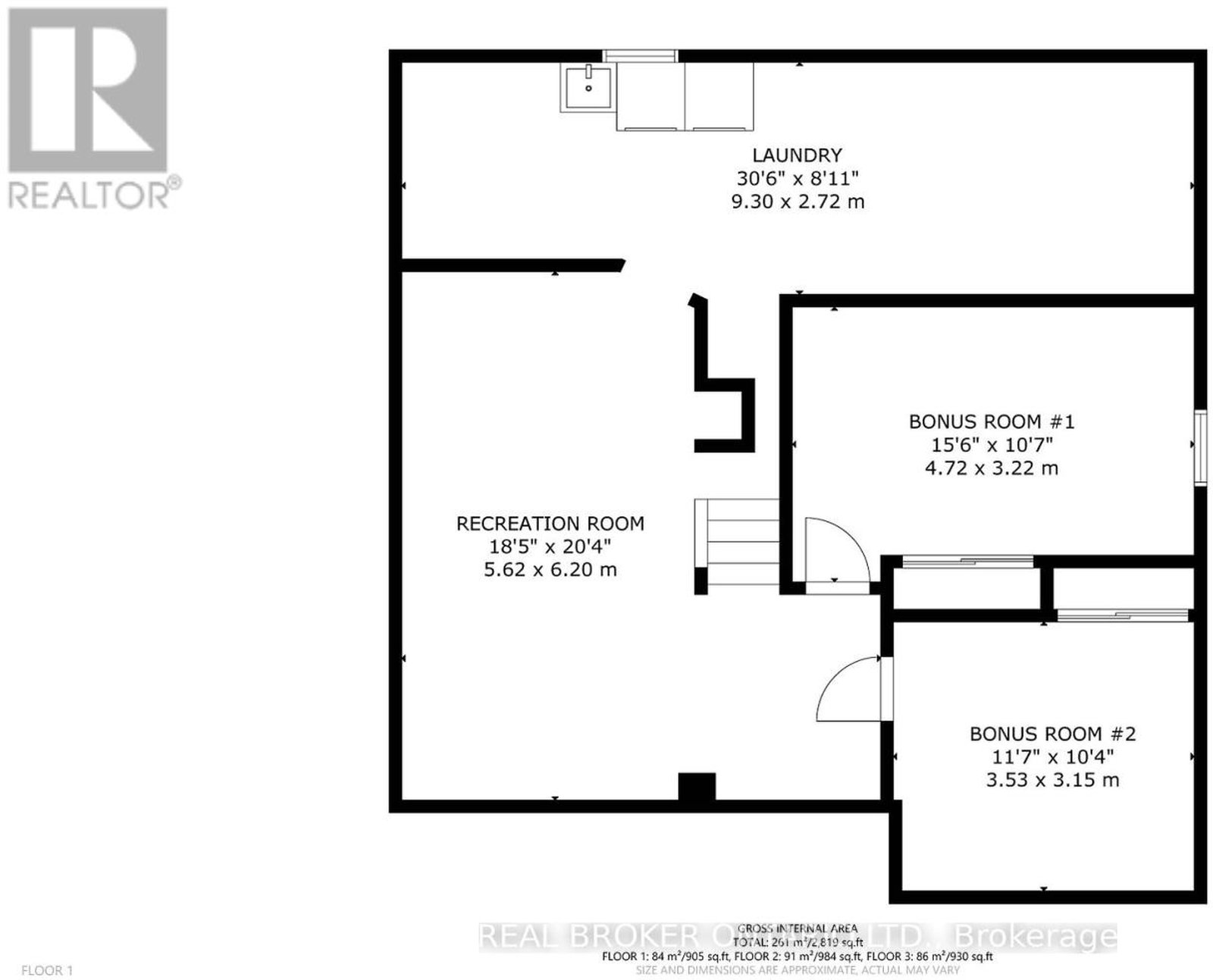
  • Lower - Recreational, Games room 6.2 M x 5.62 M
  • Lower - Den 3.53 M x 3.15 M
  • Lower - Office 4.72 M x 3.22 M
  • Lower - Laundry room 9.3 M x 2.72 M
  • Lot Dimensions 59.9 x 99.9 FT
  • Inclusions Water Heater, Dishwasher, Dryer, Freezer, Hood Fan, Stove, Washer
  • Heating/AC Forced air, Natural gas, Central air conditioning
  • Basement Partially finished
  • Listing Broker REAL BROKER ONTARIO LTD.
  • MLSID X12461059