1437 Usborne Street

Mcnab/Braeside Twps, Mcnab/braeside, K0A1G0

$695,000
Calling All Horse Enthusiasts! Set on just over 12 acres in McNab/Braeside Township, this property offers the perfect blend of comfortable family living and country lifestyle. The spacious 4-bedroom, 3-bath bungalow features a walkout lower level, while the surrounding land is set up for those who love the outdoors and animals. Equestrian-friendly outbuildings include a 30 x 24 stable with hydro, water, 3 box stalls, tack room, and storage, along with a 30 x 24 open-front shed and a 30 x 30 storage building. A fenced round ring and maintained drivable trails throughout the property provide endless opportunities for riding, ATVing, biking, or snowmobiling. The acreage is a mix of hardwood and softwood, offering firewood potential, along with established raspberry bushes scattered throughout the grounds. The home has seen important updates including a new septic system and tanks (2025), propane furnace (approx. 2020), and roof shingles (approx. 2015). An oversized paved circular driveway ensures plenty of parking. Enjoy being just minutes from local amenities: 3 minutes to Braeside Beach & Red Pine Bay boat launch, 4 minutes to the Braeside Recreation Centre, 9 minutes to Arnprior, and quick access to Hwy 417 for an easy commute east or west. Whether your a horse lover, hobby farmer, or simply looking for privacy and acreage close to town, this property offers it all!Offers presented at 6pm on Wednesday Aug 27th 2025, and the seller reserves the right to accept pre-emptive offers.

4
BEDS

3
BATHS
 
Let's Talk About
Your Dream Home
613-369-8314
info@rachelhammer.com
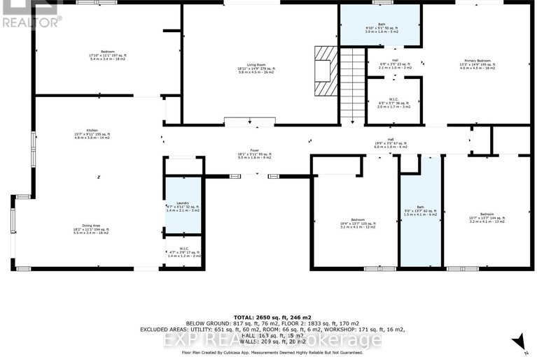
  • Main - Foyer 1.8 M x 5.5 M
  • Main - Bathroom 1.6 M x 3 M
  • Main - Living room 4.5 M x 5.8 M
  • Main - Kitchen 3 M x 4.8 M
  • Main - Dining room 3.4 M x 5.5 M
  • Main - Laundry room 2.1 M x 1.4 M
  • Main - Bedroom 3.4 M x 5.4 M
  • Main - Bedroom 4.1 M x 3.1 M
  • Main - Bathroom 4.1 M x 1.5 M
  • Main - Bedroom 4.1 M x 3.2 M
  • Main - Primary Bedroom 4.5 M x 4 M
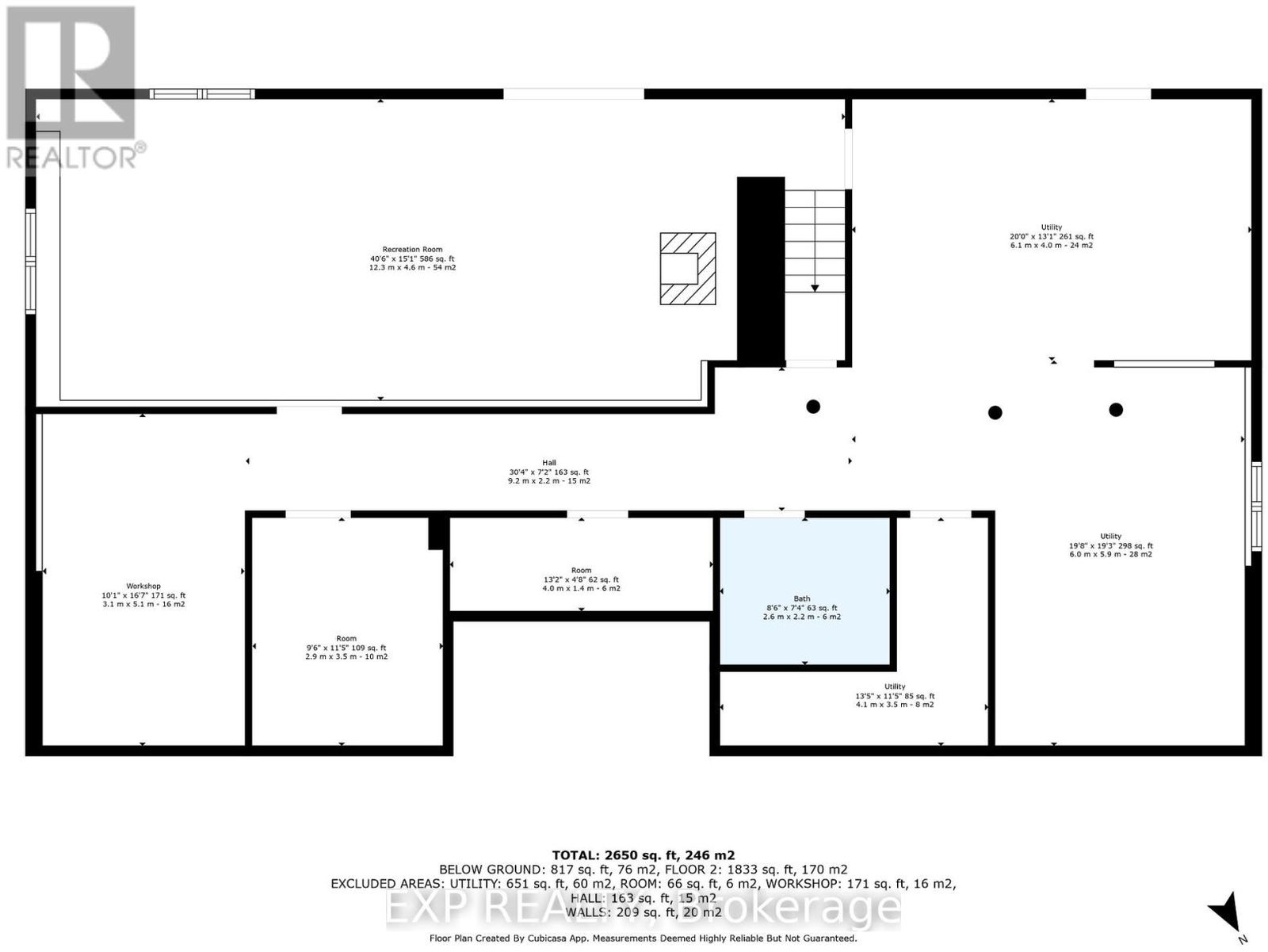
  • Lower - Recreational, Games room 4.6 M x 12.3 M
  • Lower - Other 3.5 M x 2.9 M
  • Lower - Other 1.4 M x 4 M
  • Lower - Bathroom 2.2 M x 2.6 M
  • Lower - Workshop 5.1 M x 3.1 M
  • Lower - Utility room 5.9 M x 6 M
  • Lower - Utility room 4 M x 6.1 M
  • Lower - Utility room 3.5 M x 4.1 M
  • Lot Dimensions 1163.1 x 79 Acre
  • Inclusions Water softener, Blinds, Dryer, Washer
  • Heating/AC Forced air, Propane, Central air conditioning
  • Listing Broker EXP REALTY
  • MLSID X12457636