16 North Harrow Drive

Longfields, Ottawa, K2J4V7

$849,900
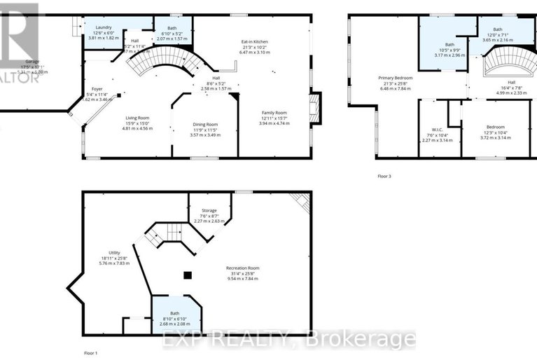
Centrally located in Barrhaven, this single-family home with double car garage offers a spacious layout and functional design for family living. The main level features hardwood floors throughout, with a formal living and dining room ideal for entertaining. At the back of the home, the open-concept kitchen and family room are filled with natural light. The kitchen includes stainless steel appliances, ample counter space, generous storage, a large island, and a breakfast nook overlooking the backyard. A mudroom with laundry, and a powder room complete the main level. Upstairs, the massive primary bedroom offers a true walk-in closet, private sitting area, and a 5-piece ensuite. Three additional sizeable bedrooms and a full bathroom provide plenty of space for the family. The fully finished basement extends the living space with a large recreation room with lighting throughout, a 3-piece bathroom, and abundant storage. Outside, the backyard features a deck, gazebo and plenty of space for gatherings and outdoor enjoyment. Driveway offering parking for 4 additional vehicles. Located in the Longfields community, this home is walking distance to Starbucks, Farm Boy, schools, parks, a pharmacy, a medical centre, restaurants and Barrhaven Town Centre. Just a short drive brings you to Costco, Fallowfield Station, and Highway 416, making shopping, transit, and commuting exceptionally convenient.

4
BEDS

4
BATHS
 
Let's Talk About
Your Dream Home
613-369-8314
info@rachelhammer.com
  • Main - Living room 4.81 M x 4.56 M
  • Main - Dining room 3.57 M x 3.49 M
  • Main - Family room 3.94 M x 4.74 M
  • Main - Kitchen 6.47 M x 3.1 M
  • Main - Bathroom 2.07 M x 1.57 M
  • Main - Laundry room 3.81 M x 1.82 M
  • Second - Bedroom 3 3.59 M x 3.13 M
  • Second - Bedroom 4 3.29 M x 3.08 M
  • Second - Bathroom 3.65 M x 2.16 M
  • Second - Primary Bedroom 6.48 M x 7.84 M
  • Second - Primary Bedroom 2.27 M x 3.14 M
  • Second - Primary Bedroom 3.17 M x 2.96 M
  • Second - Bedroom 2 3.72 M x 3.14 M
  • Lower - Recreational, Games room 9.54 M x 7.84 M
  • Lower - Bathroom 2.68 M x 2.08 M
  • Lot Dimensions 35.1 x 98.4 FT
  • Inclusions Garage door opener remote(s), Dishwasher, Dryer, Hood Fan, Microwave, Stove, Washer, Refrigerator
  • Heating/AC Forced air, Natural gas, Central air conditioning
  • Basement Finished
  • Listing Broker EXP REALTY
  • MLSID X12439731