A & B - 116 Cambridge Street N

West Centre Town, Ottawa, K1R7A7

$1,150,000
A rare opportunity in the heart of Ottawa - two full homes front to back semi-detached on one property, designed for unique urban living or investment flexibility. Tenants would love to stay, so keep it as a rental property or consider other options such as multigenerational, owner occupy etc. Unit A (month-to-month $1754.34+ Utilities), the original home, beautifully restored in approximately 2005, blends historic charm with modern comfort. Featuring 2 bedrooms and 2 full baths, it offers a warm and inviting layout with hardwood floors, a modernized kitchen, and updated bathrooms. Unit B (month-month $2836.69+ Utilities), constructed in 2005, brings a striking contrast with its light-filled, three-story design. Offering 3 bedrooms and 3 baths, it showcases contemporary finishes, hardwood flooring, wide tread maple stairs, a sleek kitchen, and private access to the backyard retreat. This home also includes a one-car garage and laneway parking for up to 3 cars for added convenience. Both homes are currently tenanted month-to-month, providing flexibility for investors or owner-occupiers alike. The property benefits from Cambridge North's recently completed streetscape renewal, with one-way access to Somerset and a winding, park-like front yard that enhances the curb appeal. This is more than just a home; it's a versatile package with income potential, modern comforts, and urban convenience in one of Ottawa's most dynamic neighborhoods- Centretown West. Incredible walkability to all of your favourite places, start with your morning coffee at Drip House and work your way up! 48 Hours notice for showings ** This is a linked property.**

5
BEDS

5
BATHS
 
Let's Talk About
Your Dream Home
613-369-8314
info@rachelhammer.com
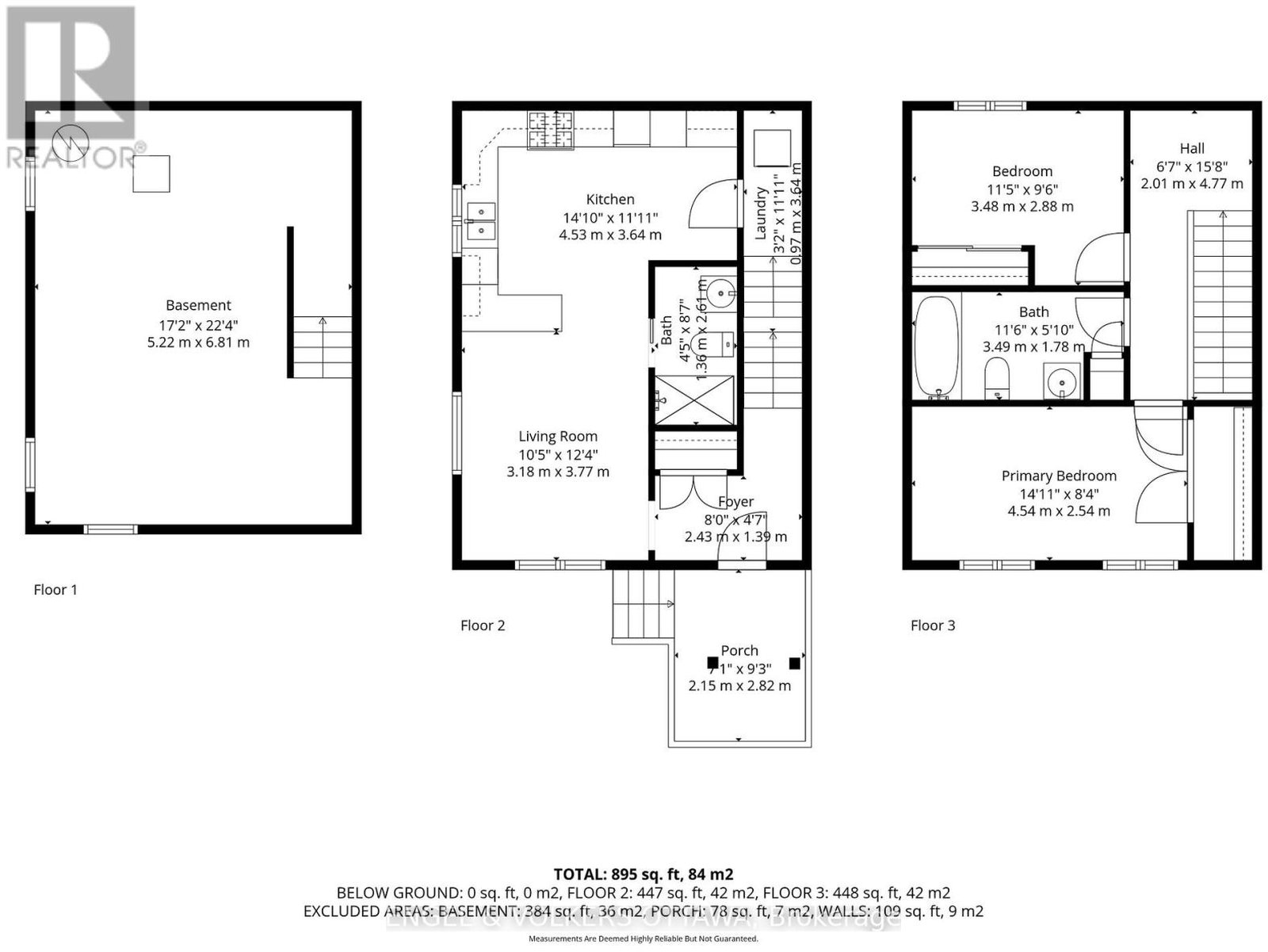
  • Main - Foyer 2.43 M x 1.39 M
  • Main - Living room 6.45 M x 5.08 M
  • Main - Kitchen 4.71 M x 3.63 M
  • Main - Living room 3.77 M x 3.18 M
  • Main - Bathroom 1.58 M x 1.32 M
  • Main - Laundry room n/a x n/a
  • Main - Bathroom 2.61 M x 1.36 M
  • Main - Kitchen 4.53 M x 3.64 M
  • Main - Laundry room 3.64 M x 0.97 M
  • Second - Bedroom 5.42 M x 3.63 M
  • Second - Bedroom 3.97 M x 3.03 M
  • Second - Bathroom 3.03 M x 1.33 M
  • Second - Other 4.77 M x 2.01 M
  • Second - Bedroom 3.48 M x 2.88 M
  • Second - Bathroom 3.49 M x 1.78 M
  • Second - Primary Bedroom 4.54 M x 2.54 M
  • Third - Primary Bedroom 6.45 M x 4.01 M
  • Third - Bathroom 2.64 M x 2.23 M
  • Lot Dimensions 33 x 99 FT
  • Inclusions Water meter, All
  • Heating/AC Forced air, Natural gas, Central air conditioning
  • Listing Broker ENGEL & VOLKERS OTTAWA
  • MLSID X12436849