505 Lyon Street N

Ottawa Centre, Ottawa, K1R5X6

$880,000
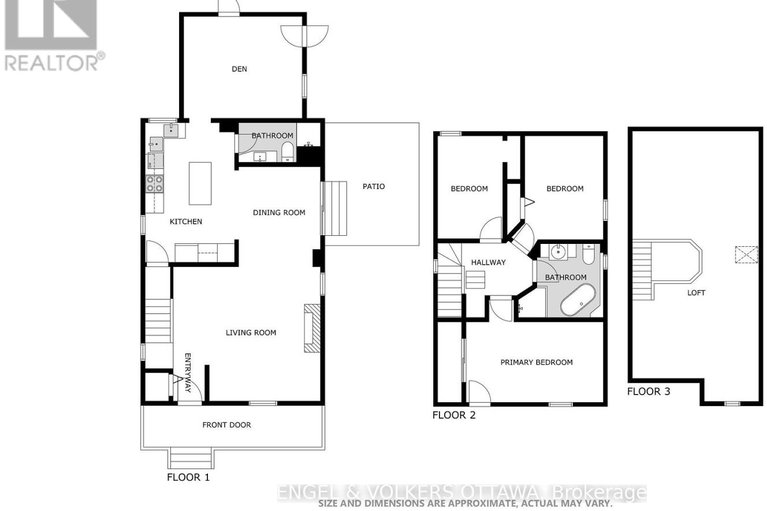
This detached home is steeped in character, providing thoughtful updates and a highly functional layout without losing any of its original charm. Situated on a desirable corner lot with private outdoor space and parking for three vehicles, including an attached garage, it delivers both comfort and versatility in a truly enviable Centretown location.The main floor is anchored by a generous central kitchen, seamlessly connecting the homes open living and dining spaces. At the front, a cozy living room with a gas fireplace welcomes you in, while at the back, the dining area opens through sliding doors to a side yard thats both private and inviting, perfect for dining and entertaining alfresco. A convenient three-piece bathroom completes the main level.Upstairs, the second floor features three well-sized bedrooms and a full bathroom. The third level features a spacious loft with vaulted ceilings, providing a flexible retreat that can serve as a home office, creative studio, guest suite or additional living space. The unfinished basement offers ample storage and laundry.The location is one of Ottawas most popular; just steps to Bank Street, Chinatown and only minutes to Hintonburg, youll enjoy immediate access to shops, cafés, dining and transit. With all it has to offer, 505 Lyon St strikes the perfect balance between downtown vibrancy and the warmth and comfort of home.

3
BEDS

2
BATHS
 
Let's Talk About
Your Dream Home
613-369-8314
info@rachelhammer.com
  • Main - Living room 4.5974 M x 3.9624 M
  • Main - Dining room 3.3782 M x 2.9972 M
  • Main - Kitchen 4.5212 M x 2.8956 M
  • Main - Den 4.3942 M x 3.6322 M
  • Main - Bathroom 3.0226 M x 1.3462 M
  • Second - Primary Bedroom 5.3594 M x 2.8194 M
  • Second - Bedroom 2 3.5814 M x 2.2606 M
  • Second - Bedroom 3 3.6068 M x 2.9972 M
  • Second - Bathroom 2.7432 M x 2.3368 M
  • Third - Loft 7.5438 M x 4.1402 M
  • Lot Dimensions 33 x 66 FT
  • Inclusions Blinds, Dishwasher, Dryer, Stove, Washer, Refrigerator
  • Heating/AC Forced air, Natural gas, Central air conditioning
  • Basement Unfinished
  • Listing Broker ENGEL & VOLKERS OTTAWA
  • MLSID X12435278