1970 Wildflower Drive

Queenswood Heights South, Ottawa, K1E3V4

$486,900
Great location! Set directly across from a large park with soccer field, play structure, and nature trails, this townhouse at 1970 Wildflower Drive is walking distance to schools, shops, and public transit. 3Bedroom & 4 Bathroom home with the Primary Bedroom offering a walk-in closet & 3Pcs ensuite bath. Eat-in kitchen and spacious main level plan. Fully finished basement offers a family room with cozy wood burning fireplace, an office/den, laundry room, 3 Pcs bathroom and ample storage space. Additional features include a single-car garage, PVC windows, wood-burning fireplace, fully fenced back yard with a deck and parking for 3 cars. The home requires cosmetic updating and is priced accordingly, making it an excellent opportunity for buyers looking to add value by rolling up their sleeves and doing the updates themselves. Condo fees are an exceptionally low $165/month.

3
BEDS

4
BATHS
 
Let's Talk About
Your Dream Home
613-369-8314
info@rachelhammer.com
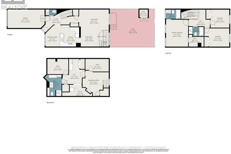
  • Main - Foyer 5.4 M x 2.46 M
  • Main - Kitchen 3.5 M x 2.33 M
  • Main - Living room 4.87 M x 3.46 M
  • Main - Dining room 3.3 M x 2.6 M
  • Main - Bathroom 1.8 M x 0.94 M
  • Second - Bathroom 2.45 M x 1.53 M
  • Second - Primary Bedroom 4.43 M x 3.63 M
  • Second - Other 2.45 M x 1.96 M
  • Second - Bathroom 2.39 M x 1.54 M
  • Second - Bedroom 2 4.09 M x 3 M
  • Second - Bedroom 3 3.08 M x 2.97 M
  • Lower - Family room 4.31 M x 3.91 M
  • Lower - Office 3.84 M x 2.07 M
  • Lower - Bathroom 3.47 M x 2.8 M
  • Lower - Laundry room 4.13 M x 3.63 M
  • Lower - Other 3.45 M x 2.5 M
  • Lower - Utility room 4.93 M x 1.85 M
  • Condo Fees $165.00/M
  • Amenities Fireplace(s)
  • Inclusions Dishwasher, Dryer, Hood Fan, Washer, Refrigerator
  • Heating/AC Forced air, Natural gas, Central air conditioning
  • Listing Broker RE/MAX HALLMARK REALTY GROUP
  • MLSID X12676244