102 - 75 Cleary Avenue

Woodroffe, Ottawa, K2A1R8

$549,000
Welcome to The Continental by Charlesfort, a highly sought-after building in one of Ottawa's premier locations along the river and steps to transit, pathways, cafés, and Westboro amenities. This spacious one-bedroom, one-bath condo offers approximately 800 sq. ft. of stylish living space, highlighted by soaring ceilings and floor-to-ceiling windows that fill the suite with natural light. The open-concept design features hardwood flooring, a striking stone feature wall with electric fireplace, and a beautifully updated kitchen with granite countertops, newer stainless steel appliances, and excellent storage. Recently refreshed with new paint, this home feels elevated and move-in ready. The generously sized bedroom offers ample closet space, and the renovated bathroom adds a spa-like touch. A rare bonus- a private ground-level terrace, providing your own outdoor space for morning coffee or evening relaxation. Additional conveniences include in-unit laundry, owned underground parking equipped with an EV charger, and an owned storage locker. Residents enjoy exceptional amenities such as an exercise room, a rooftop patio with stunning Ottawa River views, and a stylish games/party room. Offering design, comfort, lifestyle, and an unbeatable location!

1
BED

1
BATH
 
Let's Talk About
Your Dream Home
613-369-8314
info@rachelhammer.com
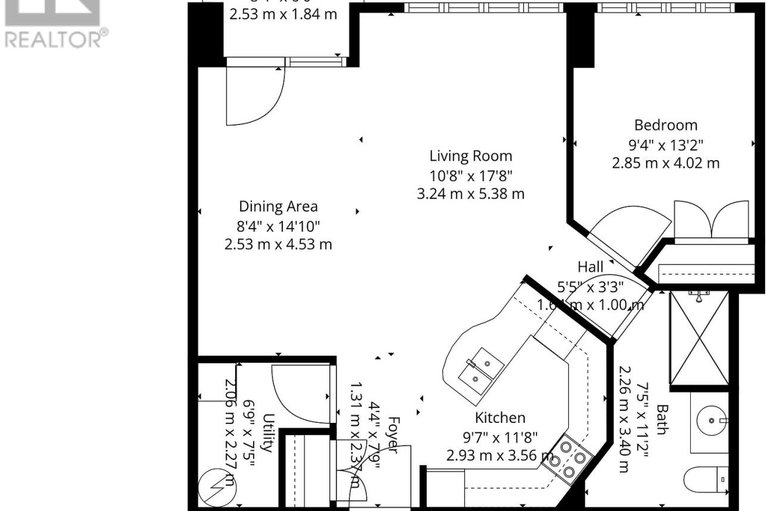
  • Main - Foyer 1.31 M x 2.37 M
  • Main - Kitchen 2.93 M x 3.56 M
  • Main - Living room 3.24 M x 5.38 M
  • Main - Dining room 2.53 M x 4.53 M
  • Main - Bedroom 2.85 M x 4.02 M
  • Main - Bathroom 2.26 M x 3.4 M
  • Main - Laundry room 2.06 M x 2.27 M
  • Condo Fees $731.53/M
  • Amenities Car Wash, Exercise Centre, Party Room, Fireplace(s), Storage - Locker
  • Inclusions Dishwasher, Dryer, Hood Fan, Microwave, Stove, Washer, Refrigerator
  • Heating/AC Forced air, Not known, Electric, Natural gas, Central air conditioning
  • Listing Broker ENGEL & VOLKERS OTTAWA
  • MLSID X12525768