317 - 270 Brittany Drive

Viscount Alexander Park, Ottawa, K1K4M3

$312,900
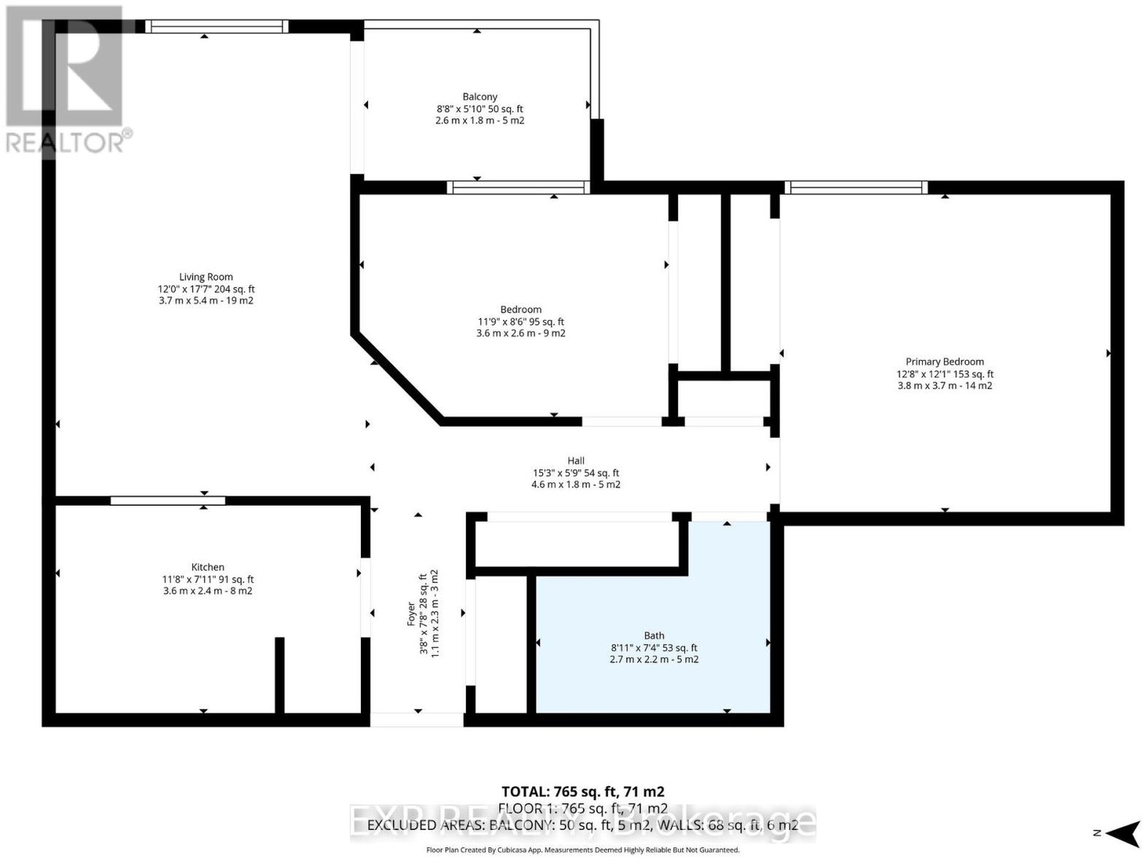
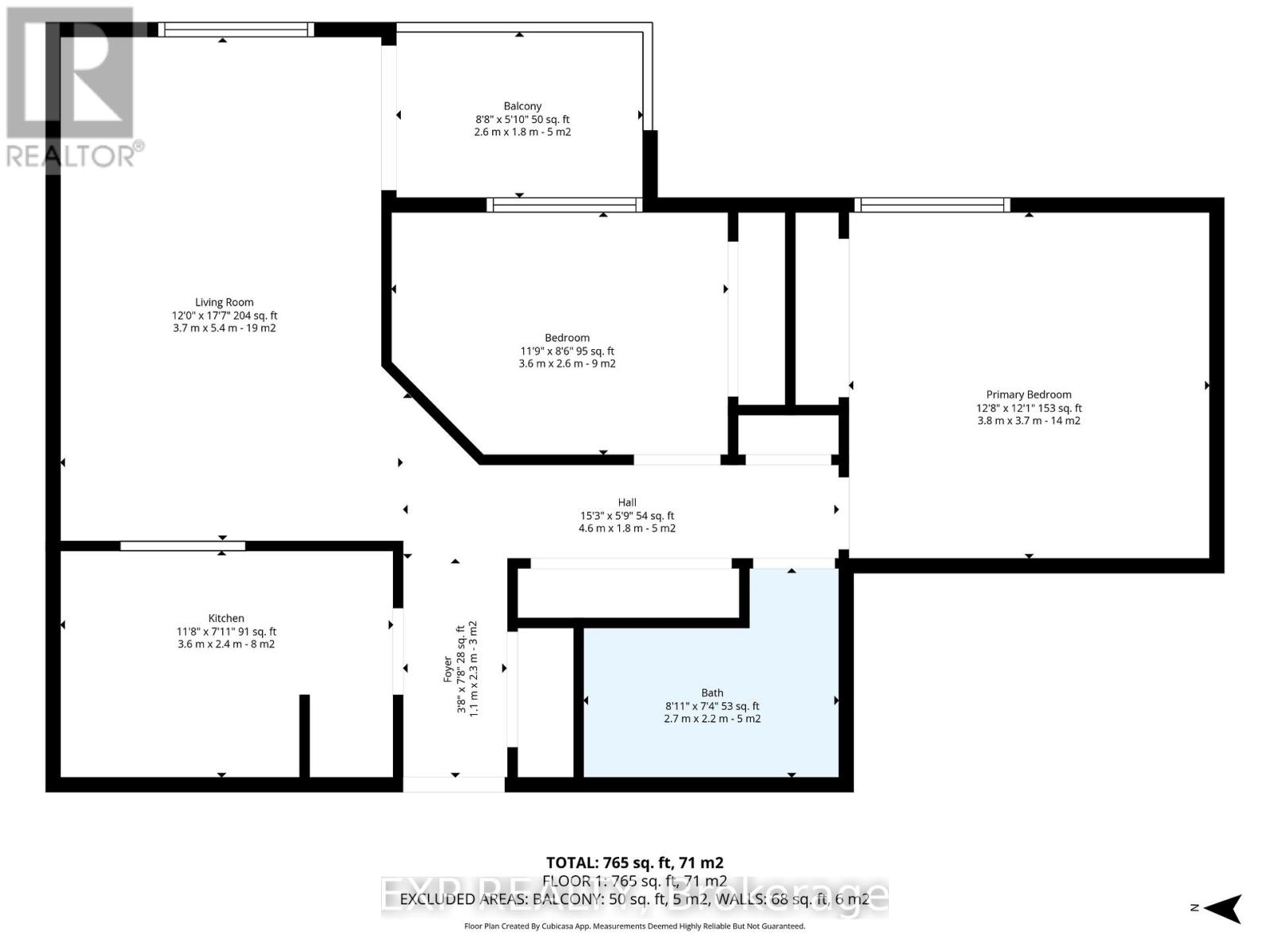
Welcome to 270 Brittany Drive, Unit 317 a 2-bedroom, 1-bath condo offering unbeatable value in a central location. This functional unit features in-suite laundry, an open-concept living/dining area filled with natural light, and a private balcony. Enjoy low condo fees with access to fantastic amenities including an outdoor pool, tennis and racquetball courts, and a private pond with walking path and greenspace. Conveniently located near shopping, transit, Montfort Hospital and minutes to downtown. Perfect for first-time buyers, downsizers or investors looking for a well-managed community with lifestyle and convenience. Parking is available to rent through condo.

2
BEDS

1
BATH
 
Let's Talk About
Your Dream Home
613-369-8314
info@rachelhammer.com
  • Main - Foyer 2.3 M x 1.1 M
  • Main - Kitchen 2.4 M x 3.6 M
  • Main - Living room 5.4 M x 3.7 M
  • Main - Bedroom 2.6 M x 3.6 M
  • Main - Bathroom 2.2 M x 2.7 M
  • Main - Primary Bedroom 3.7 M x 3.8 M
  • Condo Fees $372.78/M
  • Amenities Sauna, Visitor Parking, Exercise Centre
  • Inclusions Blinds, Dishwasher, Dryer, Stove, Washer, Refrigerator
  • Listing Broker EXP REALTY
  • MLSID X12463359