52 Bergeron Private

Chapel Hill, Ottawa, K1C0C2

$459,900
Gorgeous 3 bedroom Domicile lower end unit terrace home with modern touches in desirable Chapel Hill! Welcoming foyer with plenty of custom storage space. Luxurious, oversized open concept living/dining/kitchen area with hardwood floors. Cozy electric fireplace feature wall. A dream space for entertaining guests or curling up with a good book. You'll love the ample cabinet space in the kitchen, quartz countertops and stainless steel appliances. Lower level features primary bedroom with 4 piece ensuite, built in TV and custom walk in closet with wall to wall Ikea cupboards! 2 secondary bedrooms, family bath and laundry complete this level that includes updated luxury vinyl floors. Enjoy time outside on your balcony and interlock patio below. There is 1 parking space included with the unit as well as a storage locker. This unit is a must see!!

3
BEDS

3
BATHS
 
Let's Talk About
Your Dream Home
613-369-8314
info@rachelhammer.com
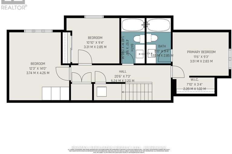
  • Main - Foyer 3.51 M x 2.73 M
  • Main - Kitchen 2.93 M x 2.44 M
  • Main - Living room 3.56 M x 4.26 M
  • Main - Dining room 2.61 M x 5.15 M
  • Lower - Primary Bedroom 3.51 M x 2.83 M
  • Lower - Bedroom 2 3.74 M x 4.26 M
  • Lower - Bedroom 3 3.31 M x 2.85 M
  • Condo Fees $412.68/M
  • Amenities Fireplace(s), Storage - Locker
  • Inclusions Dishwasher, Hood Fan, Microwave, Stove, Window Coverings, Refrigerator
  • Heating/AC Forced air, Natural gas, Central air conditioning
  • Listing Broker RE/MAX AFFILIATES REALTY LTD.
  • MLSID X12458456