1905 - 1171 Ambleside Drive

Woodroffe, Ottawa, K2B8E1

$289,000
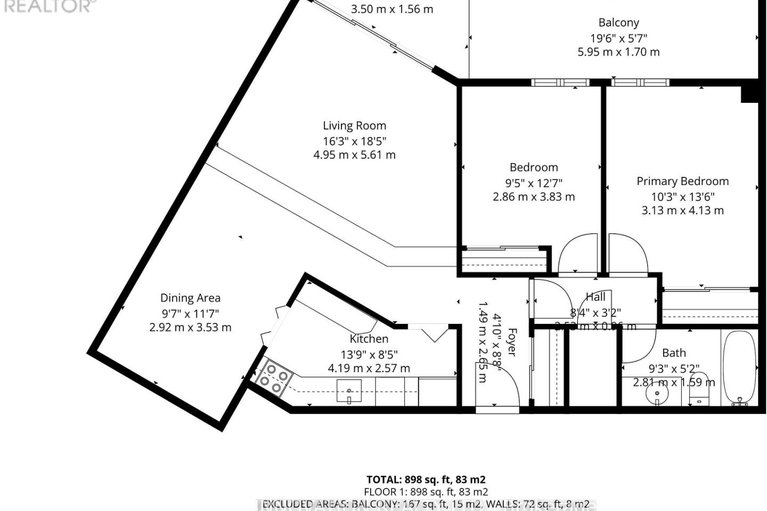
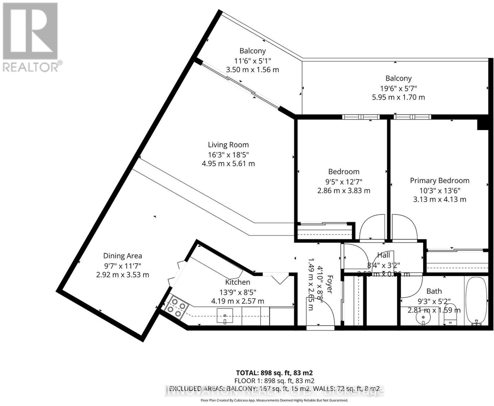
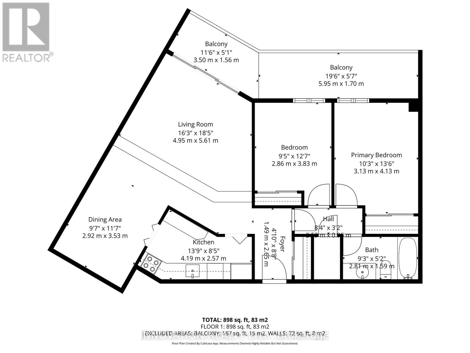
Adorable and Affordable! This 2 bedroom, 1 bathroom condo in sought-after Ambleside 2, has been well cared for over the years and is ready for your creative touch. The main living area offers open concept floorplan with formal dining and spacious sunken living room with lots of light. You will absolutely love your huge balcony with cityscape view!! Just steps to the Ottawa River walking paths, LRT, Busses and wonderful shops and stores of Westboro. (some of the building amenities include, Indoor pool, library, exercise room, gym, sauna, Outdoor patio and BBQ area, games room, squash court, billiards room, workshop, guest suites, underground parking, bike storage, storage locker, car wash.) reach out for more details today!!

2
BEDS

1
BATH
 
Let's Talk About
Your Dream Home
613-369-8314
info@rachelhammer.com
  • Condo Fees $795.65/M
  • Amenities Exercise Centre, Recreation Centre, Storage - Locker
  • Inclusions Barbeque, All
  • Heating/AC Baseboard heaters, Electric, Wall unit
  • Listing Broker INNOVATION REALTY LTD.
  • MLSID X12451928