5 - 20 Edenvale Drive

Beaverbrook, Ottawa, K2K3L4

$450,000
Welcome to Village Green, a desirable Kanata community where comfort and convenience come together. This Urbandale-built 2-bedroom + den, 2.5-bath terrace condo at 20 Edenvale Drive offers over 1,600 sq.ft. of beautifully maintained living space and a true move-in and enjoy lifestyle with no exterior maintenance. The open layout features hardwood and ceramic flooring on the upper level, a spacious living room with a gas fireplace, a formal dining area, and a bright kitchen with stainless steel appliances, granite countertops, eating area, and direct access to an additional family room that opens onto a massive covered outdoor terrace. Both bedrooms enjoy their own private ensuite bathrooms, while the den provides the perfect space for a home office or guest room. Additional highlights include central air, a single-car garage with inside entry, and remote opener. The location is unbeatablejust minutes to Kanata Centrum, top-rated schools, parks with quick access to the Park & Ride, bus station, and Highway 417 for effortless commuting. Condo fees include caretaker services, management, roofs, windows, doors, balconies, siding, and brick, ensuring peace of mind and low-maintenance living. This immaculate condo offers the perfect blend of comfort, convenience, and location in the heart of Kanatatruly a must-see.

2
BEDS

3
BATHS
 
Let's Talk About
Your Dream Home
613-369-8314
info@rachelhammer.com
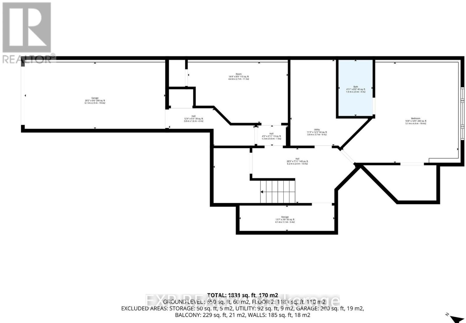
  • Main - Other 6.1 M x 2.9 M
  • Main - Office 4.4 M x 2.7 M
  • Main - Utility room 3.4 M x 3.7 M
  • Main - Bathroom 1.5 M x 2.5 M
  • Main - Bedroom 5.1 M x 4.4 M
  • Main - Other 4.1 M x 1.1 M
  • Second - Kitchen 3.1 M x 3.6 M
  • Second - Bathroom 2.1 M x 0.8 M
  • Second - Dining room 2.2 M x 3.2 M
  • Second - Bathroom 2.2 M x 2.4 M
  • Second - Living room 5.4 M x 6.2 M
  • Second - Family room 3.6 M x 3.3 M
  • Second - Primary Bedroom 6.1 M x 4.1 M
  • Second - Eating area 2.7 M x 3 M
  • Condo Fees $512.96/M
  • Inclusions Garage door opener remote(s), Dishwasher, Dryer, Stove, Washer, Refrigerator
  • Heating/AC Forced air, Natural gas, Central air conditioning
  • Listing Broker EXP REALTY
  • MLSID X12441204