1183 Mulder Avenue

Fallingbrook/Gardenway South, Ottawa, K4A4H2

$964,900
OPEN HOUSE Sun Feb 22, 2-4pm. This breathtaking 5-bedroom + main floor den, 4-bathroom detached home feels straight out of a luxury magazine. Impressive, modern, and fully upgraded, every detail has been thoughtfully curated. Oversized windows with California shutters fill the home with natural light, creating a bright, airy atmosphere throughout. The inviting foyer welcomes you with gleaming hardwood floors that flow seamlessly across the main level. A bright front office/den offers the ideal work-from-home space, while the expansive living and dining areas are perfect for everyday living and elegant entertaining. At the heart of the home, the kitchen is a true showpiece featuring abundant cabinetry, sleek quartz countertops, a statement sit-at island with extra storage, and newer stainless steel appliances. Patio doors provide effortless indoor-outdoor flow. The modern family room is warm yet refined, anchored by a gas fireplace and large windows. A stylish 2-piece bath completes the main level. A beautifully crafted hardwood staircase leads to a dramatic open-to-below layout. Upstairs, the primary suite offers a spacious walk-in closet and spa-inspired 5-piece ensuite. Three additional bedrooms, a 4-piece bath, and convenient upper-level laundry complete the space. The fully finished lower level features a large rec room, exercise space, bedroom, sleek 3-piece bath, and ample storage. The backyard impresses with a stunning inground pool, professional landscaping, and expansive patio. With a lawn sprinkler system, EV charger, and upgrades including A/C (2025), ensuite (2023), washer (2025), front windows (2023), kitchen (2024), appliances (2024), roof (2022), and furnace (2021), this home delivers luxury, comfort, and lifestyle in one exceptional package.

5
BEDS

4
BATHS
 
Let's Talk About
Your Dream Home
613-369-8314
info@rachelhammer.com
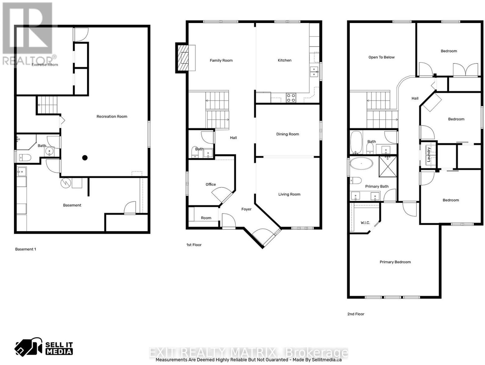
  • Main - Foyer 3.48 M x 4.73 M
  • Main - Living room 3.82 M x 4.15 M
  • Main - Dining room 3.82 M x 3.09 M
  • Main - Kitchen 3.82 M x 4.8 M
  • Main - Family room 3.94 M x 4.04 M
  • Main - Bathroom 1.49 M x 1.69 M
  • Main - Office 2.75 M x 2.95 M
  • Second - Bedroom 3.82 M x 3.17 M
  • Second - Bathroom 2.82 M x 1.46 M
  • Second - Primary Bedroom 5.35 M x 5.59 M
  • Second - Bedroom 3.59 M x 3.19 M
  • Second - Bedroom 3.57 M x 3.02 M
  • Lower - Recreational, Games room 5.19 M x 8.93 M
  • Lower - Bathroom 2.57 M x 1.72 M
  • Lower - Exercise room 3.37 M x 4.03 M
  • Lower - Utility room 7.86 M x 4.37 M
  • Lot Dimensions 43 x 109.8 FT
  • Inclusions Garage door opener remote(s), Central Vacuum, Water Heater, Blinds, Dishwasher, Dryer, Garage door opener, Microwave, Stove, Washer, Window Coverings, Refrigerator
  • Heating/AC Forced air, Natural gas, Central air conditioning, Air exchanger
  • Basement Finished
  • Listing Broker EXIT REALTY MATRIX
  • MLSID X12793644